Ver tudo
Prédio residencial レオネクストブランメゾン 108
1K / 1° andar / 31.41m²
Favoritos
Mobiliado
Ambiente ao redor
Saitama Kasukabe-shi 埼玉県春日部市小渕 Ver no Google Maps
Instalação
Água quente
Mezanino
Local para a máquina de lavar roupa
Sacada
Bicicletário
Mobiliada (móveis e eletrodomésticos)
Banheira e banheiro separados
Recurso de aquecimento da água da banheira
Vaso sanitário com lavagem de água quente
Secador de teto no banheiro
Pia independente
Tipo de fogão
Interfone com câmera

Outros :Estudantes, Com internet

Detalhes do imóvel
Ano de construção 2013/05
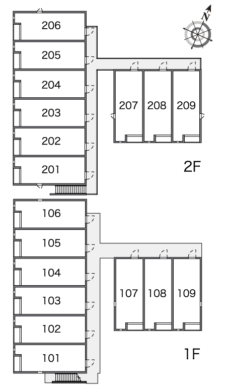
Planta da casa 1K / 1° andar
Área interna 31.41㎡
Estacionamento Disponível 1 veículo ¥7700 A 0m do imóvel
Área da construção De madeira
Localização 1° andar
Direção que bate a luz do sol Sudeste
Entrega do imóvel 2025/12 Final ¥
Ultima atualização 2025/12/15
Valor base das despesas iniciais
Depósito de garantia
0 ¥
Luva
0 ¥
Pagamento adiantado de aluguel
¥
Valor do aluguel + condomínio + despesas com administração
Taxa de corretagem
¥
Preço de um mês de aluguel + taxas
Outros
¥
Total
133,000 ¥
Despesas médias por mês
Preço do aluguel
64,000 ¥
Despesa de condomínio・despesa com taxa de administração
5,000 ¥
Outros
¥
Total
69,000 ¥
Outras despesas
Preço para renovar o contrato
¥0
Despesa para troca de chaves
¥0
Despesa para limpeza do quarto
¥0
Pagamento da empresa de seguro
¥0
Taxa de seguro da residência
Confirmar com a imobiliária
Além destes itens há outros que podem gerar despesas. Pergunte o valor exato para a imobiliária.
Imóveis semelhantes
1K / 101号室 / 1° andar / 31.41m²
¥65,000 por mês
1K / 104号室 / 1° andar / 31.41m²
¥64,000 por mês
1K / 204号室 / 2° andar / 31.41m²
¥60,000 por mês
1K / 209号室 / 2° andar / 31.41m²
¥68,000 por mês
A página detalhada do Prédio residencial レオネクストブランメゾン 108 pode ser vista na YOLO HOME, uma página especializada em imóveis em todo o Japão para intercambistas ou estrangeiros!
É possível pesquisar a partir do imóvel desejado. Procure um imóvel com as características ideais para você, como planta da casa, preço do aluguel, segurança, instalações e ambiente ao redor. A YOLO HOME apresentará informações de imóveis em todo o país para estrangeiros que queiram alugar um imóvel! Use o site de informações de imóveis da YOLO HOME para imóveis, como conjuntos residenciais, apartamentos e casas de aluguel para intercambistas ou estrangeiros.