Ver tudo
Prédio de apartamentos イニシア八王子明神町
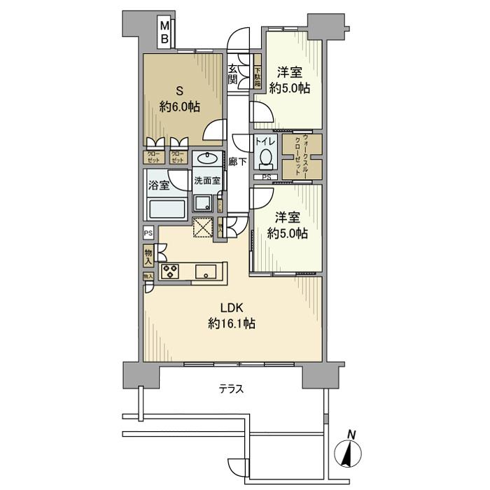
2SLDK / 1° andar / 71.23m²
Favoritos
Armário Piso de tablado
Ambiente ao redor
Tokyo Hachioji-shi 明神町4丁目 15-5 Ver no Google Maps
Instalação
Gás
Água quente
Closet
Local para a máquina de lavar roupa
Elevador
Piso de madeira
Caixa de correio
Banheira compartilhada
Banheiro compartilhado
Banheira e banheiro separados
Chuveiro
Recurso de aquecimento da água da banheira
Pia e lavatório com chuveiro
Vaso sanitário com lavagem de água quente
Secador de teto no banheiro
Pia independente
Banheira automática
Tipo de fogão
Número de bocas no fogão
Cozinha embutida
Cozinha Americana
Máquina de lavar louça e secadora
Interfone com câmera

Outros :Escritório, Água, Drenagem, CATV, Quarto compartilhado

Detalhes do imóvel
Ano de construção 2011/01
Planta da casa 2SLDK / 1° andar
Área interna 71.23㎡
Estacionamento Indisponível
Área da construção RC
Localização 1° andar
Direção que bate a luz do sol Sul
Entrega do imóvel
Ultima atualização 2025/12/09
Valor base das despesas iniciais
Depósito de garantia
175,000 ¥
Luva
175,000 ¥
Pagamento adiantado de aluguel
¥
Valor do aluguel + condomínio + despesas com administração
Taxa de corretagem
¥
Preço de um mês de aluguel + taxas
Outros
¥
Total
710,000 ¥
Despesas médias por mês
Preço do aluguel
175,000 ¥
Despesa de condomínio・despesa com taxa de administração
10,000 ¥
Outros
¥
Total
185,000 ¥
Outras despesas
Preço para renovar o contrato
¥0
Despesa para troca de chaves
¥0
Despesa para limpeza do quarto
¥0
Pagamento da empresa de seguro
¥0
Taxa de seguro da residência
Confirmar com a imobiliária
Além destes itens há outros que podem gerar despesas. Pergunte o valor exato para a imobiliária.
A página detalhada do Prédio de apartamentos イニシア八王子明神町 pode ser vista na YOLO HOME, uma página especializada em imóveis em todo o Japão para intercambistas ou estrangeiros!
É possível pesquisar a partir do imóvel desejado. Procure um imóvel com as características ideais para você, como planta da casa, preço do aluguel, segurança, instalações e ambiente ao redor. A YOLO HOME apresentará informações de imóveis em todo o país para estrangeiros que queiram alugar um imóvel! Use o site de informações de imóveis da YOLO HOME para imóveis, como conjuntos residenciais, apartamentos e casas de aluguel para intercambistas ou estrangeiros.