Xem toàn bộ
Nhà manshon KDXレジデンス横濱紅葉坂 706
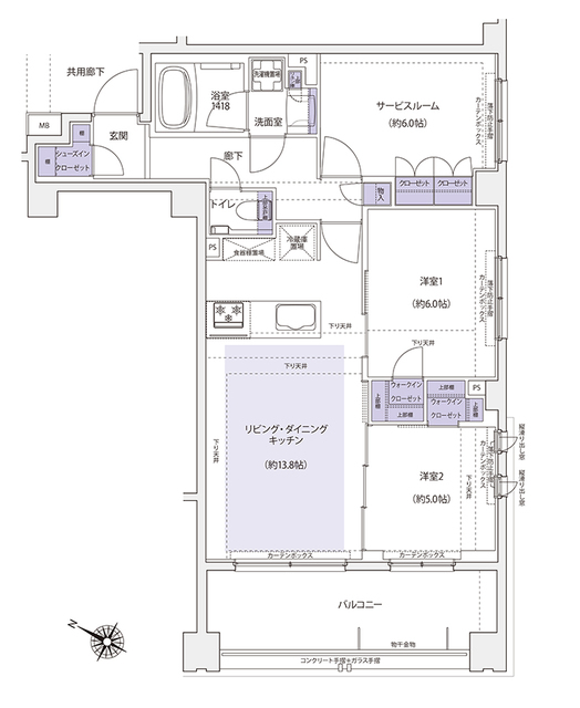
2SLDK / 6 tầng / 70.11m²
Yêu thích
Tự động khoáTủ âm tườngSàn nhà
Môi trường xung quanh
Kanagawa Yokohama-shi Nishi-ku 紅葉ケ丘 6-1 Xem trên Google map
Thiết bị
Tủ quần áo W.IN
Có chỗ để máy giặt
Thang máy
Ban công
Sàn nhà
Hộp bưu kiện
Nơi để xe máy
Sưởi ấm sàn
Tầng trên cùng
Dùng chung phòng tắm
Nhà tắm, nhà vệ sinh riêng
Chức năng hâm nóng lại nước
Thiết bị làm khô nhà tắm
Chỗ rửa mặt riêng
Hệ thống nhà ăn
Khóa tự động

Khác :Văn phòng, Vật nuôi, CATV, Ăng ten CS, Ăng ten BS

Chi tiết nhà
Tháng năm xây dựng 2021/02
Bố trí nhà ở 2SLDK / 6 tầng
Diện tích 70.11㎡
Bãi đỗ xe Không
Cấu trúc xây dựng RC
Vị trí
Mặt được nắng chiếu chính Tây Nam
Chuyển 2026/02 Hạ tuần (10 ngày cuối tháng)
Cập nhật mới nhất 2025/12/09
Mục tiêu chi phí đầu kì
Tiền đặt cọc
330,000 yên
Tiền lễ
660,000 yên
Tiền nhà trước đây
yên
Tiền thuê + phí dịch vụ chung, phí quản lý
Phí trung gian
yên
Tiền nhà 1 tháng + thuế
Khác
yên
Tổng
1,665,000 yên
Mục tiêu chi phí hàng tháng
Tiền thuê
330,000 yên
Phí dịch vụ chung, phí quản lý...
15,000 yên
Khác
yên
Tổng
345,000 yên
Mục tiêu các chi phí khác
Phí làm mới hợp đồng
¥0
Phí thay khóa
¥0
Phí lau dọn trong phòng
¥0
Phí sử dụng công ty bảo đảm
¥0
Phí bảo hiểm nhà
Xác nhận với công ty bất động sản
Có thể có chi phí khác ngoài những mục này. Vui lòng liên hệ với công ty bất động sản để biết số tiền chính xác.
Nhà khác trong cùng tòa nhà
1LDK / 205号室 / 1 tầng / 45.47m²
233,000 yên / tháng
Trang chi tiết Nhà manshon KDXレジデンス横濱紅葉坂 706. Hãy đến với YOLO HOME nếu bạn đang tìm kiếm thông tin nhà cho thuê cho người nước ngoài và phòng dành riêng cho sinh viên quốc tế trên cả nước!
Bạn có thể tìm kiếm từ các điều kiện mong muốn của bạn. Hãy tìm nhà cho thuê phù hợp với bạn dựa trên bố trí nhà ở, tiền thuê, an ninh, thông tin thiết bị, môi trường xung quanh, v.v. Chúng tôi xin giới thiệu YOLO HOME nếu bạn cần thông tin nhà cho thuê, tìm phòng và thông tin bất động sản cho người nước ngoài trong số nhà cho thuê trên toàn quốc! Nếu bạn muốn thuê apartment, manshon hoặc nhà riêng cho thuê, hãy đến với YOLO HOME, trang web thông tin cho thuê bất động sản dành cho sinh viên quốc tế và người nước ngoài!