外国人の仕事探し、家探しならYOLO JAPAN
仕事探し
モニター体験
FAQ
閲覧履歴
お気に入り
ログイン
会員登録
Japanese
留学生・外国人向け不動産・賃貸情報サイトYOLO HOME
千葉県
印西市
マンション ザ・レジデンス千葉ニュータウン中央四番館 1131
画像
周辺環境
設備
物件詳細
初期費用
月額費用
1/2
1/2
マンション ザ・レジデンス千葉ニュータウン中央四番館 1131
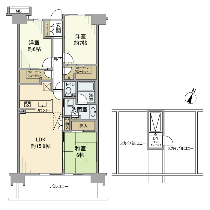
3LDK / 11階 / 81.14m²
お気に入り
シェア
URLをコピー
オートロック
フローリング
周辺環境
千葉県 印西市 戸神台2丁目
1-4
Google マップで見る
ストリートビューを見る
設備
建物設備
バス・トイレ
キッチン
セキュリティ
給湯
洗濯機置き場
エレベータ
バルコニー
フローリング
宅配ボックス
駐輪場
オール電化
照明器具付き
最上階
バス専用共同
トイレ専用共同
バス・トイレ別
シャワー
シャワー付洗面化粧台
温水洗浄便座
浴室乾燥機
洗面所独立
オートバス
コンロ種別
コンロ口数
システムキッチン
カウンターキッチン
オートロック
TVドアホン
その他:事務所, 定期借家権, 水道, 排水, CATV, ルームシェア
物件詳細
築年月
2010/07
間取り
3LDK / 11階
専有面積
81.14㎡
駐車場
無
建物構造
RC
位置
主要採光面
南
引き渡し
最終更新日
2025/12/07
空室状況を問い合わせる
この物件を見学する
初期費用の目安
敷金
310,000
円
礼金
0
円
前家賃
円
賃料+共益費・管理費
仲介手数料
円
賃料の1ヶ月分+税
その他
円
合計
620,000
円
月額費用の目安
賃料
155,000
円
共益費・管理費等
0
円
その他
円
合計
155,000
円
その他費用の目安
更新料
¥0
鍵交換費
¥0
室内清掃費用
¥0
保証会社利用料
¥0
住宅保険料
不動産会社に確認
これらの項目以外にも費用がかかる場合があります。正確な金額は不動産会社にお問合せください。
千葉県印西市の賃貸物件をこだわりテーマから探す
敷金 / 礼金ゼロ
保証人不要
家具家電付き
一人暮らし
学生・留学生
ファミリー物件
新婚・カップル
カード決済
ペット可・相談
デザイナーズ
リノベーション
セキュリティ
駅徒歩10分以内
バイク置き場
駐輪場有り
駐車場有り
千葉県印西市にある駅から賃貸物件を探す
JR成田線
木下
小林
北総鉄道
千葉ニュータウン中央
印西牧の原
印旛日本医大
成田スカイアクセス
千葉ニュータウン中央
印旛日本医大
マンション ザ・レジデンス千葉ニュータウン中央四番館 1131 の物件詳細ページ。全国の賃貸物件外国人向けの賃貸情報・留学生向け専用のお部屋探しならYOLO HOME!
ご希望条件から検索可能。間取りや賃料、セキュリティーや設備情報、周辺環境などから、あなたの理想にぴったりな賃貸物件をお探しください。全国の賃貸物件の外国人向けの賃貸・部屋探し・不動産情報(ふどうさんじょうほう)ならYOLO HOMEをご紹介!賃貸マンション・賃貸アパート・賃貸一軒家などの賃貸住宅を借りるなら、留学生・外国人向け不動産 賃貸情報サイト YOLO HOME。