外国人の仕事探し、家探しならYOLO JAPAN
仕事探し
モニター体験
FAQ
閲覧履歴
お気に入り
ログイン
会員登録
Japanese
留学生・外国人向け不動産・賃貸情報サイトYOLO HOME
東京都
葛飾区
アパート アプトエル 0203
画像
周辺環境
設備
物件詳細
初期費用
月額費用
1/1
1/1
アパート アプトエル 0203
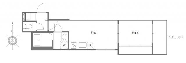
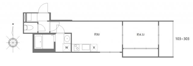
1LDK / 2階 / 31.07m²
お気に入り
シェア
URLをコピー
新築
オートロック
インターネット無料
フローリング
周辺環境
東京都 葛飾区 鎌倉4丁目
10-21
Google マップで見る
ストリートビューを見る
設備
建物設備
バス・トイレ
キッチン
セキュリティ
ガス
給湯
洗濯機置き場
フローリング
宅配ボックス
角部屋
インターネット使用料
クローゼット
バス専用共同
トイレ専用共同
バス・トイレ別
追焚機能
温水洗浄便座
浴室乾燥機
洗面所独立
コンロ種別
コンロ口数
システムキッチン
オートロック
TVドアホン
その他:楽器相談, 事務所, ペット, 水道, 排水, internet 対応, シューズボックス
物件詳細
築年月
2026/02
(新築)
間取り
1LDK / 2階
専有面積
31.07㎡
駐車場
-
建物構造
木造
位置
主要採光面
東
引き渡し
2026/03 null
最終更新日
2026/03/08
空室状況を問い合わせる
この物件を見学する
初期費用の目安
敷金
0
円
礼金
101,000
円
前家賃
円
賃料+共益費・管理費
仲介手数料
円
賃料の1ヶ月分+税
その他
円
合計
307,000
円
月額費用の目安
賃料
101,000
円
共益費・管理費等
4,000
円
その他
円
合計
105,000
円
その他費用の目安
更新料
¥0
鍵交換費
¥0
室内清掃費用
¥0
保証会社利用料
¥0
住宅保険料
不動産会社に確認
これらの項目以外にも費用がかかる場合があります。正確な金額は不動産会社にお問合せください。
同じ建物の物件
1LDK /
0303号室 /
3階 / 31.07m²
¥102,000
/ 月
1DK /
0302号室 /
3階 / 25.88m²
¥96,000
/ 月
1DK /
0301号室 /
3階 / 25.88m²
¥96,000
/ 月
1DK /
0202号室 /
2階 / 25.88m²
¥95,000
/ 月
1DK /
0201号室 /
2階 / 25.88m²
¥95,000
/ 月
1LDK /
0103号室 /
1階 / 31.07m²
¥99,000
/ 月
1DK /
0102号室 /
1階 / 25.88m²
¥93,000
/ 月
1DK /
0101号室 /
1階 / 25.88m²
¥93,000
/ 月
この物件を見ている人におすすめの物件
さらに賃料が安い
¥84,000
/ 月
管理費:¥15,000
22.04㎡ 1LDK K
さらに賃料が安い
¥88,000
/ 月
管理費:¥4,000
26.08㎡ 1LDK K
さらに賃料が安い
¥74,000
/ 月
管理費:¥4,000
21.53㎡ 1LDK K
さらに賃料が安い
¥50,000
/ 月
管理費:¥5,000
17.98㎡ 1LDK K
さらに賃料が安い
¥93,000
/ 月
管理費:¥4,000
25.88㎡ 1LDK DK
さらに賃料が安い
¥93,000
/ 月
管理費:¥4,000
25.88㎡ 1LDK DK
¥99,000
/ 月
管理費:¥4,000
31.07㎡ 1LDK LDK
さらに賃料が安い
¥95,000
/ 月
管理費:¥4,000
25.88㎡ 1LDK DK
さらに賃料が安い
¥95,000
/ 月
管理費:¥4,000
25.88㎡ 1LDK DK
さらに賃料が安い
¥96,000
/ 月
管理費:¥4,000
25.88㎡ 1LDK DK
さらに賃料が安い
¥96,000
/ 月
管理費:¥4,000
25.88㎡ 1LDK DK
¥102,000
/ 月
管理費:¥4,000
31.07㎡ 1LDK LDK
さらに賃料が安い
¥57,000
/ 月
管理費:¥3,000
14.44㎡ 1LDK R
¥98,000
/ 月
管理費:¥11,000
20.47㎡ 1LDK K
さらに賃料が安い
¥73,500
/ 月
管理費:¥10,000
20.88㎡ 1LDK K
さらに賃料が安い
¥69,000
/ 月
管理費:¥5,000
23.23㎡ 1LDK DK
さらに賃料が安い
¥93,000
/ 月
管理費:¥5,500
23.13㎡ 1LDK K
さらに賃料が安い
¥77,000
/ 月
管理費:¥5,500
19.87㎡ 1LDK K
さらに賃料が安い
¥74,000
/ 月
管理費:¥5,500
19.87㎡ 1LDK K
さらに賃料が安い
¥68,000
/ 月
管理費:¥5,500
19.87㎡ 1LDK K
東京都葛飾区の賃貸物件をこだわりテーマから探す
敷金 / 礼金ゼロ
保証人不要
家具家電付き
一人暮らし
学生・留学生
ファミリー物件
新婚・カップル
カード決済
ペット可・相談
デザイナーズ
リノベーション
セキュリティ
駅徒歩10分以内
バイク置き場
駐輪場有り
駐車場有り
東京都葛飾区にある駅から賃貸物件を探す
JR常磐線
亀有
金町
JR総武線
新小岩
JR総武本線
新小岩
京成本線
堀切菖蒲園
お花茶屋
青砥
京成高砂
京成押上線
青砥
京成高砂
四ツ木
京成立石
成田スカイアクセス
青砥
京成高砂
北総鉄道
京成高砂
新柴又
京成金町線
京成高砂
柴又
京成金町
アパート アプトエル 0203 の物件詳細ページ。全国の賃貸物件外国人向けの賃貸情報・留学生向け専用のお部屋探しならYOLO HOME!
ご希望条件から検索可能。間取りや賃料、セキュリティーや設備情報、周辺環境などから、あなたの理想にぴったりな賃貸物件をお探しください。全国の賃貸物件の外国人向けの賃貸・部屋探し・不動産情報(ふどうさんじょうほう)ならYOLO HOMEをご紹介!賃貸マンション・賃貸アパート・賃貸一軒家などの賃貸住宅を借りるなら、留学生・外国人向け不動産 賃貸情報サイト YOLO HOME。