外国人の仕事探し、家探しならYOLO JAPAN
仕事探し
モニター体験
FAQ
閲覧履歴
お気に入り
ログイン
会員登録
Japanese
留学生・外国人向け不動産・賃貸情報サイトYOLO HOME
京都府
京都市右京区
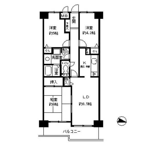
マンション 山ノ内パーク・ホームズ 217
画像
周辺環境
設備
物件詳細
初期費用
月額費用
1/4
1/4
マンション 山ノ内パーク・ホームズ 217
3LDK / 2階 / 62.36m²
お気に入り
シェア
URLをコピー
オートロック
周辺環境
京都府 京都市右京区 山ノ内養老町
5-1
Google マップで見る
ストリートビューを見る
設備
建物設備
バス・トイレ
キッチン
セキュリティ
洗濯機置き場
エレベータ
バルコニー
バイク置き場
バス専用共同
バス・トイレ別
追焚機能
システムキッチン
オートロック
その他:事務所, BSアンテナ, internet 対応
物件詳細
築年月
1988/02
間取り
3LDK / 2階
専有面積
62.36㎡
駐車場
無
建物構造
RC
位置
主要採光面
東
引き渡し
2026/05 中旬
最終更新日
2026/04/05
空室状況を問い合わせる
この物件を見学する
初期費用の目安
敷金
99,000
円
礼金
198,000
円
前家賃
円
賃料+共益費・管理費
仲介手数料
円
賃料の1ヶ月分+税
その他
円
合計
485,000
円
月額費用の目安
賃料
89,000
円
共益費・管理費等
10,000
円
その他
円
合計
99,000
円
その他費用の目安
更新料
¥0
鍵交換費
¥0
室内清掃費用
¥0
保証会社利用料
¥0
住宅保険料
不動産会社に確認
これらの項目以外にも費用がかかる場合があります。正確な金額は不動産会社にお問合せください。
この物件を見ている人におすすめの物件
さらに築年数が浅い
¥122,000
/ 月
管理費:¥8,000
67.27㎡ 3LDK LDK
さらに賃料が安い
¥69,000
/ 月
管理費:¥5,000
59.4㎡ 3LDK LDK
京都府京都市右京区の賃貸物件をこだわりテーマから探す
敷金 / 礼金ゼロ
保証人不要
家具家電付き
一人暮らし
学生・留学生
ファミリー物件
新婚・カップル
カード決済
ペット可・相談
デザイナーズ
リノベーション
セキュリティ
駅徒歩10分以内
バイク置き場
駐輪場有り
駐車場有り
京都府京都市右京区にある駅から賃貸物件を探す
JR山陰本線
花園
太秦
嵯峨嵐山
阪急京都本線
西院
西京極
阪急嵐山線
嵐山
京福電気鉄道嵐山本線
西大路三条
山ノ内
蚕ノ社
太秦広隆寺
帷子ノ辻
有栖川
車折神社
鹿王院
嵐電嵯峨
嵐山
嵐電天神川
京福電気鉄道北野線
帷子ノ辻
龍安寺
妙心寺
御室仁和寺
宇多野
鳴滝
常盤
撮影所前
嵯峨野観光鉄道
トロッコ嵯峨
トロッコ嵐山
京都地下鉄東西線
太秦天神川
マンション 山ノ内パーク・ホームズ 217 の物件詳細ページ。全国の賃貸物件外国人向けの賃貸情報・留学生向け専用のお部屋探しならYOLO HOME!
ご希望条件から検索可能。間取りや賃料、セキュリティーや設備情報、周辺環境などから、あなたの理想にぴったりな賃貸物件をお探しください。全国の賃貸物件の外国人向けの賃貸・部屋探し・不動産情報(ふどうさんじょうほう)ならYOLO HOMEをご紹介!賃貸マンション・賃貸アパート・賃貸一軒家などの賃貸住宅を借りるなら、留学生・外国人向け不動産 賃貸情報サイト YOLO HOME。