모두 보기
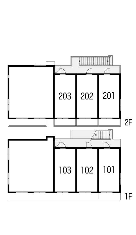
아파트 レオパレス栄町 203
1K / 2층 / 16.81m²
즐겨 찾기
가구 가전 포함
주변 환경
사이타마현 Ageo-shi 埼玉県上尾市栄町 구글 맵으로 보기
설비
급탕
로프트 포함
세탁기 두는 곳
자전거 주차장
가구 · 가전 포함
최상 층
가스렌지 종류

그 외:케이블TV

매물 상세
건축 년월 1992/11
방 배치 1K / 2층
전유 면적 16.81㎡
주차장 공실 있음 (11대) 11000엔 집으로부터의 거리 0m
건물 구조 목조
위치
주요 채광면
인도 2026/01 하순 ¥
마지막 검토 2025/12/31
초기 비용 기준
시키킹 (보증금)
0
레이킹 (사례금)
46,000
선월세
임대료 + 공익비 · 관리비
중개 수수료
임대료 1개월 분 + 세금
그 외
합계
143,000
월액 비용의 기준
임대료
46,000
공익비 · 관리비등
5,000
그 외
합계
51,000
그 외 비용의 기준
갱신료
¥0
열쇠 교환비
¥0
실내 청소 비용
¥0
보증 회사 이용료
¥0
주택 보험료
부동산 회사에 확인
이러한 항목 이외에도 비용이 드는 경우가 있습니다. 정확한 금액은 부동산 회사에 문의해 주세요.
아파트 レオパレス栄町 203 의 매물 상세 페이지. 전국 임대 매물 외국인을 위한 임대정보 · 유학생을 위한 전용 집 찾기라면 YOLO HOME!
희망 조건으로 검색 가능. 방 배치나 임대료, 보안이나 설비 정보, 주변 환경 등으로, 당신의 이상에 딱 맞는 임대 매물을 찾아보세요. 전국 임대 매물의 외국인을 위한 임대 · 집 찾기 · 부동산 정보라면 YOLO HOME을 소개합니다! 임대 맨션 · 임대 아파트 · 임대 주택 등의 임대 집을 찾는다면 유학생 · 외국인을 위한 부동산 임대 정보 사이트 YOLO HOME.