모두 보기
맨션 ビレッジハウス野村2号棟 0105
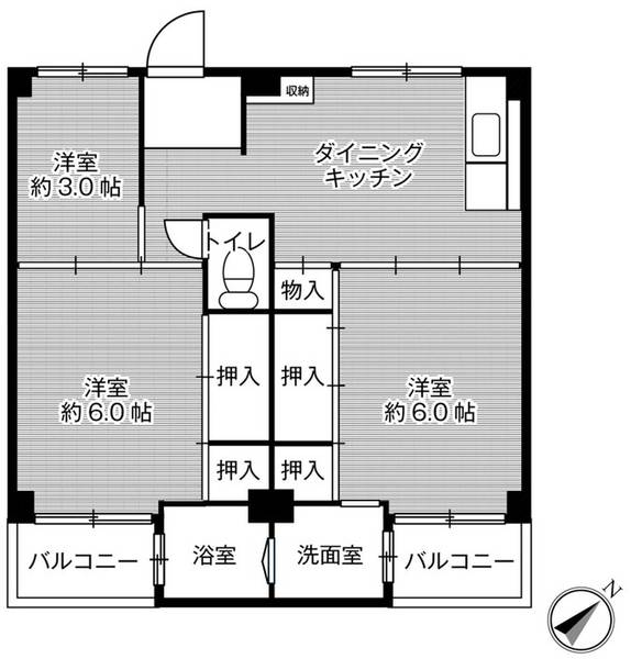
3DK / 1층 / 49.2m²
즐겨 찾기
주변 환경
효고현 Nishiwaki-shi 野村町 1799-16 구글 맵으로 보기
설비
가스
급탕
세탁기 두는 곳
발코니
맨 끝 집
욕실 · 화장실 별도
온수 세정 변기
독립세면실
TV 도어폰

그 외:2인 입주, 반려동물, 배수, 인터넷 대응

매물 상세
건축 년월 1964/05
방 배치 3DK / 1층
전유 면적 49.2㎡
주차장 공실 있음 3300엔
건물 구조 RC
위치 1층 집
주요 채광면 남서
인도
마지막 검토 2026/01/16
초기 비용 기준
시키킹 (보증금)
0
레이킹 (사례금)
0
선월세
임대료 + 공익비 · 관리비
중개 수수료
임대료 1개월 분 + 세금
그 외
합계
77,400
월액 비용의 기준
임대료
38,700
공익비 · 관리비등
0
그 외
합계
38,700
그 외 비용의 기준
갱신료
¥0
열쇠 교환비
¥0
실내 청소 비용
¥0
보증 회사 이용료
¥0
주택 보험료
부동산 회사에 확인
이러한 항목 이외에도 비용이 드는 경우가 있습니다. 정확한 금액은 부동산 회사에 문의해 주세요.
같은 건물의 매물
3DK / 0101号室 / 1층 / 49.2m²
¥40,700 / 월
맨션 ビレッジハウス野村2号棟 0105 의 매물 상세 페이지. 전국 임대 매물 외국인을 위한 임대정보 · 유학생을 위한 전용 집 찾기라면 YOLO HOME!
희망 조건으로 검색 가능. 방 배치나 임대료, 보안이나 설비 정보, 주변 환경 등으로, 당신의 이상에 딱 맞는 임대 매물을 찾아보세요. 전국 임대 매물의 외국인을 위한 임대 · 집 찾기 · 부동산 정보라면 YOLO HOME을 소개합니다! 임대 맨션 · 임대 아파트 · 임대 주택 등의 임대 집을 찾는다면 유학생 · 외국인을 위한 부동산 임대 정보 사이트 YOLO HOME.