맨션 サンクレイドルおゆみ野中央 201
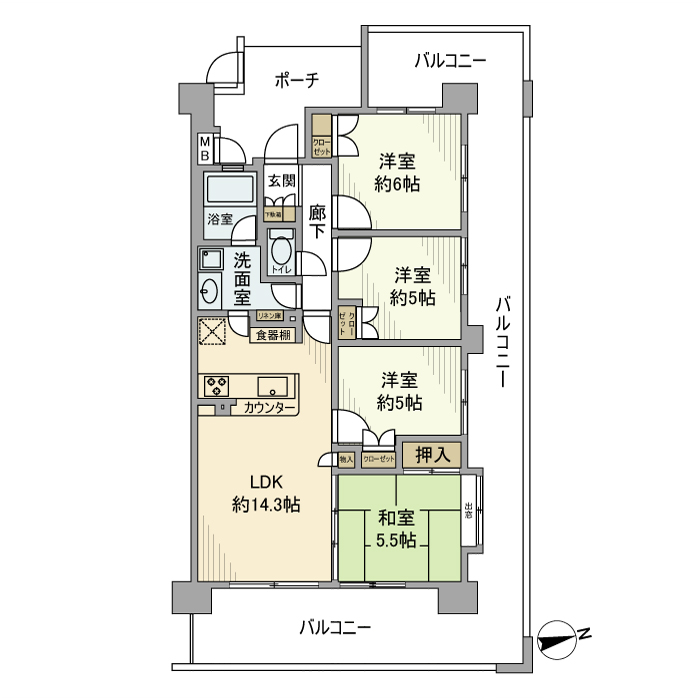
4LDK / 2층 / 75.2m²
즐겨 찾기
자동 잠금플로어링
주변 환경
치바현 Chiba-shi Midori-ku おゆみ野中央1丁目 16-1 구글 맵으로 보기
설비
가스
급탕
세탁기 두는 곳
엘리베이터
발코니
플로링
택배 박스
맨 끝 집
조명기구 완비
욕실 전용 공동
화장실 전용 공동
욕실 · 화장실 별도
샤워
오이타키(온수순환) 기능
샤워 기능 세면대
온수 세정 변기
욕실 건조기
독립세면실
자동 욕조
가스렌지 종류
가스렌지 화구수
시스템 키친
카운터 키친
식기 세척건조기
디스포저
자동 잠금
TV 도어폰

그 외:사무실, 정기임대권, 수도, 배수, 케이블TV, 룸 쉐어

매물 상세
건축 년월 2006/01
방 배치 4LDK / 2층
전유 면적 75.2㎡
주차장
건물 구조 RC
위치
주요 채광면
인도 2026/04 상순
마지막 검토 2026/01/15
초기 비용 기준
시키킹 (보증금)
260,000
레이킹 (사례금)
130,000
선월세
임대료 + 공익비 · 관리비
중개 수수료
임대료 1개월 분 + 세금
그 외
합계
650,000
월액 비용의 기준
임대료
130,000
공익비 · 관리비등
0
그 외
합계
130,000
그 외 비용의 기준
갱신료
¥0
열쇠 교환비
¥0
실내 청소 비용
¥0
보증 회사 이용료
¥0
주택 보험료
부동산 회사에 확인
이러한 항목 이외에도 비용이 드는 경우가 있습니다. 정확한 금액은 부동산 회사에 문의해 주세요.
맨션 サンクレイドルおゆみ野中央 201 의 매물 상세 페이지. 전국 임대 매물 외국인을 위한 임대정보 · 유학생을 위한 전용 집 찾기라면 YOLO HOME!
희망 조건으로 검색 가능. 방 배치나 임대료, 보안이나 설비 정보, 주변 환경 등으로, 당신의 이상에 딱 맞는 임대 매물을 찾아보세요. 전국 임대 매물의 외국인을 위한 임대 · 집 찾기 · 부동산 정보라면 YOLO HOME을 소개합니다! 임대 맨션 · 임대 아파트 · 임대 주택 등의 임대 집을 찾는다면 유학생 · 외국인을 위한 부동산 임대 정보 사이트 YOLO HOME.