맨션 プレサンス横浜大通り公園 0907
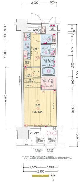
1K / 9층 / 25.52m²
즐겨 찾기
자동 잠금인터넷 무료
주변 환경
카나가와현 Yokohama-shi Minami-ku 高根町4丁目 22番地2号 구글 맵으로 보기
설비
급탕
엘리베이터
택배 박스
인터넷 사용료
조명기구 완비
샤워 기능 세면대
온수 세정 변기
욕실 건조기
가스렌지 화구수
자동 잠금
TV 도어폰
방범 카메라

그 외:BS 안테나, 신발 수납장

매물 상세
건축 년월 2023/09
방 배치 1K / 9층
전유 면적 25.52㎡
주차장
건물 구조 RC
위치
주요 채광면
인도
마지막 검토 2026/04/28
초기 비용 기준
시키킹 (보증금)
0
레이킹 (사례금)
120,000
선월세
임대료 + 공익비 · 관리비
중개 수수료
임대료 1개월 분 + 세금
그 외
합계
341,710
월액 비용의 기준
임대료
106,710
공익비 · 관리비등
8,290
그 외
합계
115,000
그 외 비용의 기준
갱신료
¥0
열쇠 교환비
¥0
실내 청소 비용
¥0
보증 회사 이용료
¥0
주택 보험료
부동산 회사에 확인
이러한 항목 이외에도 비용이 드는 경우가 있습니다. 정확한 금액은 부동산 회사에 문의해 주세요.
같은 건물의 매물
1K / 0709号室 / 7층 / 25.23m²
¥103,800 / 월
1K / 0203号室 / 2층 / 25.23m²
¥103,800 / 월
맨션 プレサンス横浜大通り公園 0907 의 매물 상세 페이지. 전국 임대 매물 외국인을 위한 임대정보 · 유학생을 위한 전용 집 찾기라면 YOLO HOME!
희망 조건으로 검색 가능. 방 배치나 임대료, 보안이나 설비 정보, 주변 환경 등으로, 당신의 이상에 딱 맞는 임대 매물을 찾아보세요. 전국 임대 매물의 외국인을 위한 임대 · 집 찾기 · 부동산 정보라면 YOLO HOME을 소개합니다! 임대 맨션 · 임대 아파트 · 임대 주택 등의 임대 집을 찾는다면 유학생 · 외국인을 위한 부동산 임대 정보 사이트 YOLO HOME.