모두 보기
아파트 robot home ときわ台 303
1LDK / 3층 / 29m²
즐겨 찾기
신축디자이너스인터넷 무료보증인 필요 없음플로어링
주변 환경
도쿄도 Itabashi-ku 常盤台1丁目 50(以下未定) 구글 맵으로 보기
설비
가스
급탕
세탁기 두는 곳
플로링
택배 박스
맨 끝 집
디자이너스
인터넷 사용료
옷장
최상 층
욕실 · 화장실 별도
샤워
온수 세정 변기
욕실 건조기
독립세면실
가스렌지 종류
가스렌지 화구수
시스템 키친
카운터 키친
TV 도어폰
방범 카메라

그 외:2인 입주, 보증인, 수도, 배수, 인터넷 대응, 신발 수납장

매물 상세
건축 년월 2026/07 (신축)
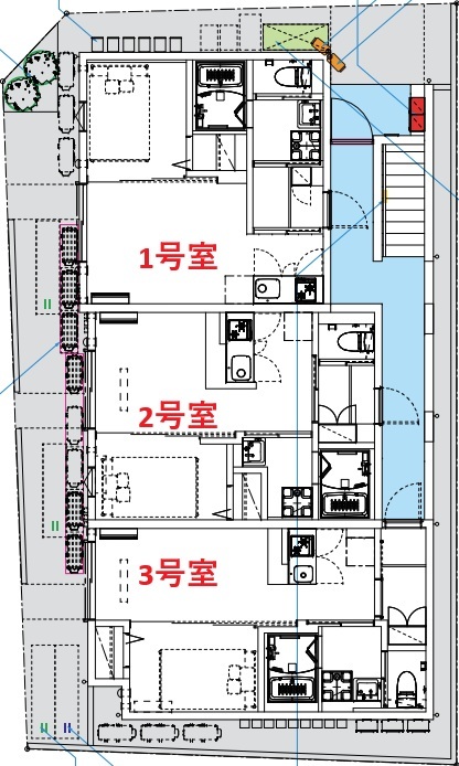
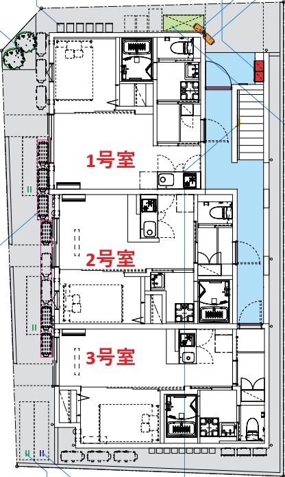
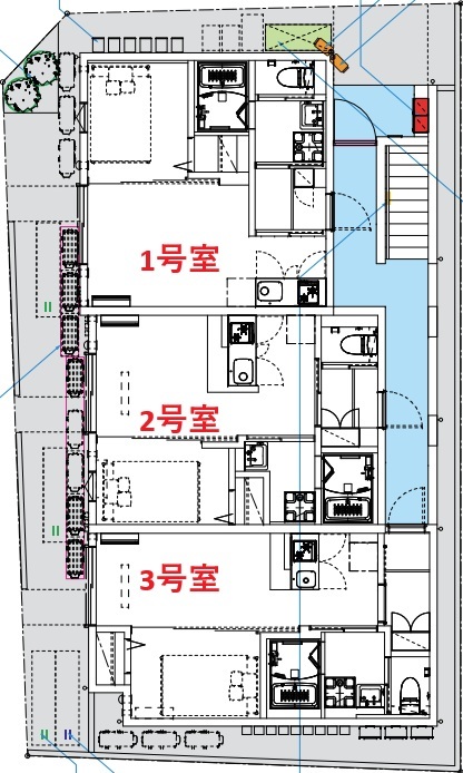
방 배치 1LDK / 3층
전유 면적 29㎡
주차장
건물 구조 목조
위치
주요 채광면
인도 2026/09 상순
마지막 검토 2026/04/05
초기 비용 기준
시키킹 (보증금)
0
레이킹 (사례금)
138,000
선월세
임대료 + 공익비 · 관리비
중개 수수료
임대료 1개월 분 + 세금
그 외
합계
417,000
월액 비용의 기준
임대료
138,000
공익비 · 관리비등
3,000
그 외
합계
141,000
그 외 비용의 기준
갱신료
¥0
열쇠 교환비
¥0
실내 청소 비용
¥0
보증 회사 이용료
¥0
주택 보험료
부동산 회사에 확인
이러한 항목 이외에도 비용이 드는 경우가 있습니다. 정확한 금액은 부동산 회사에 문의해 주세요.
같은 건물의 매물
1LDK / 101号室 / 1층 / 28m²
¥134,000 / 월
1LDK / 201号室 / 2층 / 28m²
¥135,000 / 월
1LDK / 301号室 / 3층 / 28m²
¥136,000 / 월
1LDK / 102号室 / 1층 / 28.33m²
¥135,000 / 월
1LDK / 202号室 / 2층 / 28.33m²
¥136,000 / 월
1LDK / 302号室 / 3층 / 28.33m²
¥137,000 / 월
1LDK / 103号室 / 1층 / 29m²
¥136,000 / 월
1LDK / 203号室 / 2층 / 29m²
¥137,000 / 월
아파트 robot home ときわ台 303 의 매물 상세 페이지. 전국 임대 매물 외국인을 위한 임대정보 · 유학생을 위한 전용 집 찾기라면 YOLO HOME!
희망 조건으로 검색 가능. 방 배치나 임대료, 보안이나 설비 정보, 주변 환경 등으로, 당신의 이상에 딱 맞는 임대 매물을 찾아보세요. 전국 임대 매물의 외국인을 위한 임대 · 집 찾기 · 부동산 정보라면 YOLO HOME을 소개합니다! 임대 맨션 · 임대 아파트 · 임대 주택 등의 임대 집을 찾는다면 유학생 · 외국인을 위한 부동산 임대 정보 사이트 YOLO HOME.