시키킹 (보증금)
0 엔
레이킹 (사례금)
0 엔
선월세
엔
임대료 + 공익비 · 관리비
중개 수수료
엔
임대료 1개월 분 + 세금
그 외
엔
합계
548,000 엔
그 외:악기 상담, 사무실, 반려동물, CS 안테나, BS 안테나, 프런트 서비스
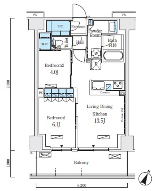
| 건축 년월 | 2025/08 (신축) |
| 방 배치 | 2LDK / 4층 |
| 전유 면적 | 55.8㎡ |
| 주차장 | 무 |
| 건물 구조 | RC |
| 위치 | |
| 주요 채광면 | 남 |
| 인도 | |
| 마지막 검토 | 2026/05/25 |

초기 비용 기준