Ver tudo
Prédio de apartamentos レオパレスコーラルリーフ 206
1K / 2° andar / 23.18m²
Favoritos
Mobiliado
Ambiente ao redor
Okinawa Uruma-shi 沖縄県うるま市石川東恩納 Ver no Google Maps
Instalação
Água quente
Local para a máquina de lavar roupa
Bicicletário
Mobiliada (móveis e eletrodomésticos)
Cobertura
Banheira e banheiro separados
Vaso sanitário com lavagem de água quente
Secador de teto no banheiro
Tipo de fogão
Interfone com câmera

Outros :Com internet

Detalhes do imóvel
Ano de construção 2010/02
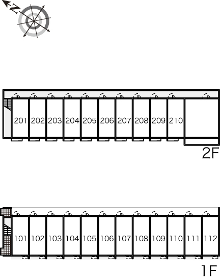
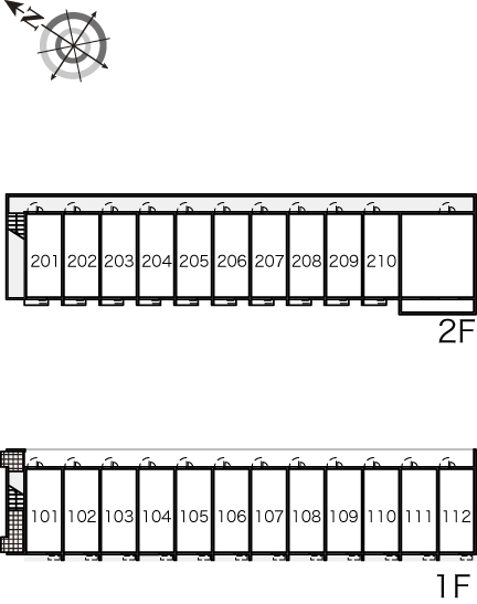
Planta da casa 1K / 2° andar
Área interna 23.18㎡
Estacionamento Disponível 1 veículo ¥4400 A 0m do imóvel
Área da construção RC
Localização
Direção que bate a luz do sol
Entrega do imóvel 2026/05 Final ¥
Ultima atualização 2026/04/06
Valor base das despesas iniciais
Depósito de garantia
0 ¥
Luva
53,000 ¥
Pagamento adiantado de aluguel
¥
Valor do aluguel + condomínio + despesas com administração
Taxa de corretagem
¥
Preço de um mês de aluguel + taxas
Outros
¥
Total
165,500 ¥
Despesas médias por mês
Preço do aluguel
53,000 ¥
Despesa de condomínio・despesa com taxa de administração
6,500 ¥
Outros
¥
Total
59,500 ¥
Outras despesas
Preço para renovar o contrato
¥0
Despesa para troca de chaves
¥0
Despesa para limpeza do quarto
¥0
Pagamento da empresa de seguro
¥0
Taxa de seguro da residência
Confirmar com a imobiliária
Além destes itens há outros que podem gerar despesas. Pergunte o valor exato para a imobiliária.
Imóveis semelhantes
1K / 203号室 / 2° andar / 23.18m²
¥53,000 por mês
1K / 202号室 / 2° andar / 23.18m²
¥51,000 por mês
1K / 210号室 / 2° andar / 23.18m²
¥54,000 por mês
A página detalhada do Prédio de apartamentos レオパレスコーラルリーフ 206 pode ser vista na YOLO HOME, uma página especializada em imóveis em todo o Japão para intercambistas ou estrangeiros!
É possível pesquisar a partir do imóvel desejado. Procure um imóvel com as características ideais para você, como planta da casa, preço do aluguel, segurança, instalações e ambiente ao redor. A YOLO HOME apresentará informações de imóveis em todo o país para estrangeiros que queiram alugar um imóvel! Use o site de informações de imóveis da YOLO HOME para imóveis, como conjuntos residenciais, apartamentos e casas de aluguel para intercambistas ou estrangeiros.