Prédio de apartamentos プラウド東陽町サウス
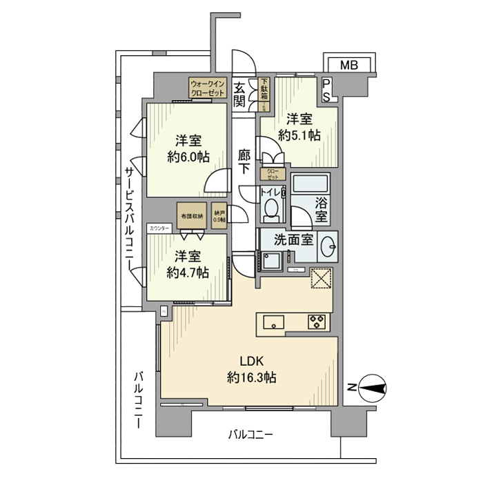
3LDK / 3° andar / 73.73m²
Favoritos
Porta eletrônicaArmário Piso de tablado
Ambiente ao redor
Tokyo Koto-ku 東陽2丁目 3-20 Ver no Google Maps
Instalação
Gás
Água quente
Closet
Local para a máquina de lavar roupa
Elevador
Sacada
Piso de madeira
Caixa de correio
Apartamento de canto
Banheira compartilhada
Banheiro compartilhado
Banheira e banheiro separados
Chuveiro
Recurso de aquecimento da água da banheira
Pia e lavatório com chuveiro
Vaso sanitário com lavagem de água quente
Secador de teto no banheiro
Pia independente
Banheira automática
Tipo de fogão
Número de bocas no fogão
Cozinha embutida
Cozinha Americana
Máquina de lavar louça e secadora
Pia com triturador de resíduos
Porta automática
Interfone com câmera

Outros :Escritório, Aluguel por tempo fixo, Água, Drenagem, CATV, Quarto compartilhado

Detalhes do imóvel
Ano de construção 2018/04
Planta da casa 3LDK / 3° andar
Área interna 73.73㎡
Estacionamento Indisponível
Área da construção RC
Localização
Direção que bate a luz do sol Oeste
Entrega do imóvel 2026/04 Início
Ultima atualização 2026/02/26
Valor base das despesas iniciais
Depósito de garantia
560,000 ¥
Luva
280,000 ¥
Pagamento adiantado de aluguel
¥
Valor do aluguel + condomínio + despesas com administração
Taxa de corretagem
¥
Preço de um mês de aluguel + taxas
Outros
¥
Total
1,400,000 ¥
Despesas médias por mês
Preço do aluguel
280,000 ¥
Despesa de condomínio・despesa com taxa de administração
0 ¥
Outros
¥
Total
280,000 ¥
Outras despesas
Preço para renovar o contrato
¥0
Despesa para troca de chaves
¥0
Despesa para limpeza do quarto
¥0
Pagamento da empresa de seguro
¥0
Taxa de seguro da residência
Confirmar com a imobiliária
Além destes itens há outros que podem gerar despesas. Pergunte o valor exato para a imobiliária.
A página detalhada do Prédio de apartamentos プラウド東陽町サウス pode ser vista na YOLO HOME, uma página especializada em imóveis em todo o Japão para intercambistas ou estrangeiros!
É possível pesquisar a partir do imóvel desejado. Procure um imóvel com as características ideais para você, como planta da casa, preço do aluguel, segurança, instalações e ambiente ao redor. A YOLO HOME apresentará informações de imóveis em todo o país para estrangeiros que queiram alugar um imóvel! Use o site de informações de imóveis da YOLO HOME para imóveis, como conjuntos residenciais, apartamentos e casas de aluguel para intercambistas ou estrangeiros.