Ver tudo
Prédio de apartamentos アピチェ田園調布 0301
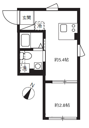
1DK / 3° andar / 19.7m²
Favoritos
Porta eletrônicaInternet gratuita Piso de tablado
Ambiente ao redor
Tokyo Ota-ku 田園調布南 18-7 Ver no Google Maps
Instalação
Gás
Água quente
Local para a máquina de lavar roupa
Piso de madeira
Caixa de correio
Taxa de uso da Internet
Banheira compartilhada
Banheiro compartilhado
Banheira e banheiro separados
Vaso sanitário com lavagem de água quente
Secador de teto no banheiro
Tipo de fogão
Número de bocas no fogão
Cozinha embutida
Porta automática
Câmeras de Segurança

Outros : Negociável para quem toca instrumentos musicais, Escritório, Animal de estimação, Água, Drenagem, Com internet, Armário para sapatos

Detalhes do imóvel
Ano de construção 2024/05
Planta da casa 1DK / 3° andar
Área interna 19.7㎡
Estacionamento -
Área da construção RC
Localização
Direção que bate a luz do sol Sudeste
Entrega do imóvel
Ultima atualização 2025/12/07
Valor base das despesas iniciais
Depósito de garantia
94,000 ¥
Luva
94,000 ¥
Pagamento adiantado de aluguel
¥
Valor do aluguel + condomínio + despesas com administração
Taxa de corretagem
¥
Preço de um mês de aluguel + taxas
Outros
¥
Total
387,000 ¥
Despesas médias por mês
Preço do aluguel
94,000 ¥
Despesa de condomínio・despesa com taxa de administração
11,000 ¥
Outros
¥
Total
105,000 ¥
Outras despesas
Preço para renovar o contrato
¥0
Despesa para troca de chaves
¥0
Despesa para limpeza do quarto
¥0
Pagamento da empresa de seguro
¥0
Taxa de seguro da residência
Confirmar com a imobiliária
Além destes itens há outros que podem gerar despesas. Pergunte o valor exato para a imobiliária.
Imóveis semelhantes
1DK / 0105号室 / 1° andar / 20.7m²
¥79,500 por mês
A página detalhada do Prédio de apartamentos アピチェ田園調布 0301 pode ser vista na YOLO HOME, uma página especializada em imóveis em todo o Japão para intercambistas ou estrangeiros!
É possível pesquisar a partir do imóvel desejado. Procure um imóvel com as características ideais para você, como planta da casa, preço do aluguel, segurança, instalações e ambiente ao redor. A YOLO HOME apresentará informações de imóveis em todo o país para estrangeiros que queiram alugar um imóvel! Use o site de informações de imóveis da YOLO HOME para imóveis, como conjuntos residenciais, apartamentos e casas de aluguel para intercambistas ou estrangeiros.