Ver tudo
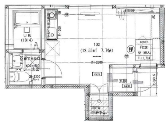
Prédio residencial KTK蒲田 102
1R / 1° andar / 16.18m²
Favoritos
Piso de tablado
Ambiente ao redor
Tokyo Ota-ku 新蒲田3丁目 8-10 Ver no Google Maps
Instalação
Gás
Água quente
Local para a máquina de lavar roupa
Piso de madeira
Caixa de correio
Armário de roupa
Banheira compartilhada
Banheiro compartilhado
Banheira e banheiro separados
Chuveiro
Vaso sanitário com lavagem de água quente
Secador de teto no banheiro
Pia independente
Tipo de fogão
Número de bocas no fogão
Cozinha embutida
Interfone com câmera

Outros : Negociável para quem toca instrumentos musicais, Animal de estimação, Água, Drenagem, Armário para sapatos

Detalhes do imóvel
Ano de construção 2018/08
Planta da casa 1R / 1° andar
Área interna 16.18㎡
Estacionamento -
Área da construção De madeira
Localização 1° andar
Direção que bate a luz do sol
Entrega do imóvel 2026/01 Final ¥
Ultima atualização 2025/12/28
Valor base das despesas iniciais
Depósito de garantia
0 ¥
Luva
75,000 ¥
Pagamento adiantado de aluguel
¥
Valor do aluguel + condomínio + despesas com administração
Taxa de corretagem
¥
Preço de um mês de aluguel + taxas
Outros
¥
Total
228,000 ¥
Despesas médias por mês
Preço do aluguel
75,000 ¥
Despesa de condomínio・despesa com taxa de administração
3,000 ¥
Outros
¥
Total
78,000 ¥
Outras despesas
Preço para renovar o contrato
¥0
Despesa para troca de chaves
¥0
Despesa para limpeza do quarto
¥0
Pagamento da empresa de seguro
¥0
Taxa de seguro da residência
Confirmar com a imobiliária
Além destes itens há outros que podem gerar despesas. Pergunte o valor exato para a imobiliária.
Imóveis semelhantes
1LDK / 303号室 / 3° andar / 33.73m²
¥108,000 por mês
A página detalhada do Prédio residencial KTK蒲田 102 pode ser vista na YOLO HOME, uma página especializada em imóveis em todo o Japão para intercambistas ou estrangeiros!
É possível pesquisar a partir do imóvel desejado. Procure um imóvel com as características ideais para você, como planta da casa, preço do aluguel, segurança, instalações e ambiente ao redor. A YOLO HOME apresentará informações de imóveis em todo o país para estrangeiros que queiram alugar um imóvel! Use o site de informações de imóveis da YOLO HOME para imóveis, como conjuntos residenciais, apartamentos e casas de aluguel para intercambistas ou estrangeiros.