Ver tudo
Prédio de apartamentos ビレッジハウス宮の前1号棟 0401
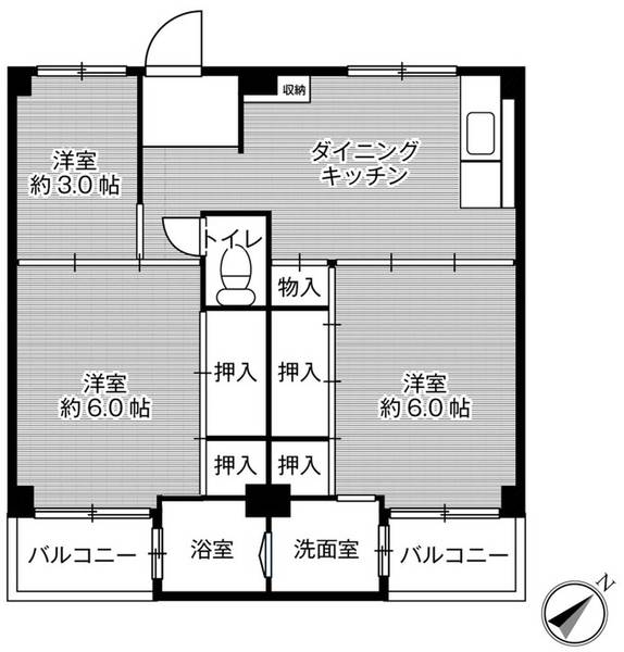
3DK / 4° andar / 49.2m²
Favoritos
Ambiente ao redor
Hyogo Kakogawa-shi 野口町野口 346番地2 Ver no Google Maps
Instalação
Gás
Água quente
Local para a máquina de lavar roupa
Sacada
Apartamento de canto
Cobertura
Banheira e banheiro separados
Pia independente

Outros :Dois moradores, Animal de estimação, Drenagem, Com internet

Detalhes do imóvel
Ano de construção 1963/11
Planta da casa 3DK / 4° andar
Área interna 49.2㎡
Estacionamento Disponível ¥4400
Área da construção RC
Localização
Direção que bate a luz do sol Sul
Entrega do imóvel
Ultima atualização 2025/12/08
Valor base das despesas iniciais
Depósito de garantia
0 ¥
Luva
0 ¥
Pagamento adiantado de aluguel
¥
Valor do aluguel + condomínio + despesas com administração
Taxa de corretagem
¥
Preço de um mês de aluguel + taxas
Outros
¥
Total
82,400 ¥
Despesas médias por mês
Preço do aluguel
41,200 ¥
Despesa de condomínio・despesa com taxa de administração
0 ¥
Outros
¥
Total
41,200 ¥
Outras despesas
Preço para renovar o contrato
¥0
Despesa para troca de chaves
¥0
Despesa para limpeza do quarto
¥0
Pagamento da empresa de seguro
¥0
Taxa de seguro da residência
Confirmar com a imobiliária
Além destes itens há outros que podem gerar despesas. Pergunte o valor exato para a imobiliária.
Imóveis semelhantes
3DK / 0204号室 / 2° andar / 49.2m²
¥48,700 por mês
A página detalhada do Prédio de apartamentos ビレッジハウス宮の前1号棟 0401 pode ser vista na YOLO HOME, uma página especializada em imóveis em todo o Japão para intercambistas ou estrangeiros!
É possível pesquisar a partir do imóvel desejado. Procure um imóvel com as características ideais para você, como planta da casa, preço do aluguel, segurança, instalações e ambiente ao redor. A YOLO HOME apresentará informações de imóveis em todo o país para estrangeiros que queiram alugar um imóvel! Use o site de informações de imóveis da YOLO HOME para imóveis, como conjuntos residenciais, apartamentos e casas de aluguel para intercambistas ou estrangeiros.