Ver tudo
Prédio de apartamentos セジョリ南品川
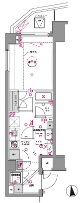
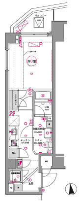
1K / 4° andar / 25.26m²
Favoritos
Porta eletrônicaPiso de tablado
Ambiente ao redor
Tokyo Shinagawa-ku 南品川4丁目 10-1 Ver no Google Maps
Instalação
Gás
Local para a máquina de lavar roupa
Elevador
Sacada
Piso de madeira
Caixa de correio
Bicicletário
Banheira compartilhada
Banheira e banheiro separados
Vaso sanitário com lavagem de água quente
Secador de teto no banheiro
Tipo de fogão
Número de bocas no fogão
Porta automática

Outros :Animal de estimação, Antena BS, Com internet

Detalhes do imóvel
Ano de construção 2009/02
Planta da casa 1K / 4° andar
Área interna 25.26㎡
Estacionamento -
Área da construção RC
Localização
Direção que bate a luz do sol Norte
Entrega do imóvel 2025/12 Meados
Ultima atualização 2025/12/08
Valor base das despesas iniciais
Depósito de garantia
0 ¥
Luva
100,000 ¥
Pagamento adiantado de aluguel
¥
Valor do aluguel + condomínio + despesas com administração
Taxa de corretagem
¥
Preço de um mês de aluguel + taxas
Outros
¥
Total
310,000 ¥
Despesas médias por mês
Preço do aluguel
100,000 ¥
Despesa de condomínio・despesa com taxa de administração
10,000 ¥
Outros
¥
Total
110,000 ¥
Outras despesas
Preço para renovar o contrato
¥0
Despesa para troca de chaves
¥0
Despesa para limpeza do quarto
¥0
Pagamento da empresa de seguro
¥0
Taxa de seguro da residência
Confirmar com a imobiliária
Além destes itens há outros que podem gerar despesas. Pergunte o valor exato para a imobiliária.
A página detalhada do Prédio de apartamentos セジョリ南品川 pode ser vista na YOLO HOME, uma página especializada em imóveis em todo o Japão para intercambistas ou estrangeiros!
É possível pesquisar a partir do imóvel desejado. Procure um imóvel com as características ideais para você, como planta da casa, preço do aluguel, segurança, instalações e ambiente ao redor. A YOLO HOME apresentará informações de imóveis em todo o país para estrangeiros que queiram alugar um imóvel! Use o site de informações de imóveis da YOLO HOME para imóveis, como conjuntos residenciais, apartamentos e casas de aluguel para intercambistas ou estrangeiros.