Prédio de apartamentos グランティアラ浅草 204
1K / 2° andar / 25.22m²
Favoritos
DesignersLixo pode ser tirado 24 horas por dia Porta eletrônicaNão precisa de fiadorPiso de tablado
Ambiente ao redor
Tokyo Taito-ku 松が谷2丁目 14-7 Ver no Google Maps
Instalação
Gás
Água quente
Local para a máquina de lavar roupa
Elevador
Sacada
Piso de madeira
Caixa de correio
Bicicletário
Apartamento de canto
Projetado por Designers
Descarte de lixo 24 horas
Armário de roupa
Banheira compartilhada
Banheiro compartilhado
Banheira e banheiro separados
Chuveiro
Vaso sanitário com lavagem de água quente
Secador de teto no banheiro
Tipo de fogão
Número de bocas no fogão
Cozinha embutida
Porta automática
Interfone com câmera
Câmeras de Segurança

Outros : Negociável para quem toca instrumentos musicais, Escritório, Estudantes, Animal de estimação, Fiador, Água, Drenagem, CATV, Antena CS, Antena BS, Com internet, Quarto compartilhado, Armário para sapatos

Detalhes do imóvel
Ano de construção 2008/02
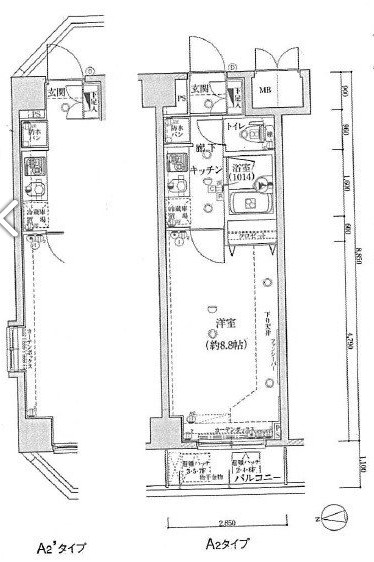
Planta da casa 1K / 2° andar
Área interna 25.22㎡
Estacionamento Indisponível
Área da construção RC
Localização
Direção que bate a luz do sol Oeste
Entrega do imóvel
Ultima atualização 2025/12/26
Valor base das despesas iniciais
Depósito de garantia
0 ¥
Luva
0 ¥
Pagamento adiantado de aluguel
¥
Valor do aluguel + condomínio + despesas com administração
Taxa de corretagem
¥
Preço de um mês de aluguel + taxas
Outros
¥
Total
210,000 ¥
Despesas médias por mês
Preço do aluguel
100,000 ¥
Despesa de condomínio・despesa com taxa de administração
10,000 ¥
Outros
¥
Total
110,000 ¥
Outras despesas
Preço para renovar o contrato
¥0
Despesa para troca de chaves
¥0
Despesa para limpeza do quarto
¥0
Pagamento da empresa de seguro
¥0
Taxa de seguro da residência
Confirmar com a imobiliária
Além destes itens há outros que podem gerar despesas. Pergunte o valor exato para a imobiliária.
A página detalhada do Prédio de apartamentos グランティアラ浅草 204 pode ser vista na YOLO HOME, uma página especializada em imóveis em todo o Japão para intercambistas ou estrangeiros!
É possível pesquisar a partir do imóvel desejado. Procure um imóvel com as características ideais para você, como planta da casa, preço do aluguel, segurança, instalações e ambiente ao redor. A YOLO HOME apresentará informações de imóveis em todo o país para estrangeiros que queiram alugar um imóvel! Use o site de informações de imóveis da YOLO HOME para imóveis, como conjuntos residenciais, apartamentos e casas de aluguel para intercambistas ou estrangeiros.