Ver tudo
Prédio de apartamentos GENOVIAお花茶屋skygarden 0118
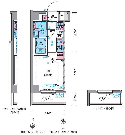
1K / 1° andar / 20.88m²
Favoritos
Lixo pode ser tirado 24 horas por dia Porta eletrônicaInternet gratuita Permitido animais (a consultar)Não precisa de fiadorPiso de tablado
Ambiente ao redor
Tokyo Katsushika-ku 宝町2丁目 5-25 Ver no Google Maps
Instalação
Gás
Água quente
Local para a máquina de lavar roupa
Elevador
Piso de madeira
Caixa de correio
Apartamento de canto
Descarte de lixo 24 horas
Taxa de uso da Internet
Armário de roupa
Banheira compartilhada
Banheiro compartilhado
Banheira e banheiro separados
Chuveiro
Vaso sanitário com lavagem de água quente
Secador de teto no banheiro
Pia independente
Cozinha embutida
Porta automática
Interfone com câmera
Câmeras de Segurança
Empresa de segurança

Outros : Negociável para quem toca instrumentos musicais, Escritório, Dois moradores, Solteiros, Estudantes, Animal de estimação, Fiador, Água, Drenagem, Com internet, Quarto compartilhado, Espaço para armazenamento em váriosem todos os cômodos, Armário para sapatos

Detalhes do imóvel
Ano de construção 2023/02
Planta da casa 1K / 1° andar
Área interna 20.88㎡
Estacionamento -
Área da construção RC
Localização 1° andar
Direção que bate a luz do sol Norte
Entrega do imóvel 2026/03 Final ¥
Ultima atualização 2025/12/28
Valor base das despesas iniciais
Depósito de garantia
0 ¥
Luva
0 ¥
Pagamento adiantado de aluguel
¥
Valor do aluguel + condomínio + despesas com administração
Taxa de corretagem
¥
Preço de um mês de aluguel + taxas
Outros
¥
Total
153,000 ¥
Despesas médias por mês
Preço do aluguel
71,500 ¥
Despesa de condomínio・despesa com taxa de administração
10,000 ¥
Outros
¥
Total
81,500 ¥
Outras despesas
Preço para renovar o contrato
¥0
Despesa para troca de chaves
¥0
Despesa para limpeza do quarto
¥0
Pagamento da empresa de seguro
¥0
Taxa de seguro da residência
Confirmar com a imobiliária
Além destes itens há outros que podem gerar despesas. Pergunte o valor exato para a imobiliária.
Imóveis semelhantes
1K / 0203号室 / 2° andar / 20.88m²
¥72,500 por mês
1K / 0206号室 / 2° andar / 20.88m²
¥72,500 por mês
A página detalhada do Prédio de apartamentos GENOVIAお花茶屋skygarden 0118 pode ser vista na YOLO HOME, uma página especializada em imóveis em todo o Japão para intercambistas ou estrangeiros!
É possível pesquisar a partir do imóvel desejado. Procure um imóvel com as características ideais para você, como planta da casa, preço do aluguel, segurança, instalações e ambiente ao redor. A YOLO HOME apresentará informações de imóveis em todo o país para estrangeiros que queiram alugar um imóvel! Use o site de informações de imóveis da YOLO HOME para imóveis, como conjuntos residenciais, apartamentos e casas de aluguel para intercambistas ou estrangeiros.