Prédio de apartamentos ザ・パークハビオ小石川 604
2LDK / 6° andar / 71.54m²
Favoritos
MobiliadoPorta eletrônicaArmário Piso de tablado
Ambiente ao redor
Tokyo Bunkyo-ku 小石川3丁目 25番6号 Ver no Google Maps
Instalação
Closet
Local para a máquina de lavar roupa
Elevador
Sacada
Piso de madeira
Caixa de correio
Apartamento de canto
Mobiliada (móveis e eletrodomésticos)
Com equipamento de iluminação
Banheira e banheiro separados
Chuveiro
Recurso de aquecimento da água da banheira
Vaso sanitário com lavagem de água quente
Secador de teto no banheiro
Tipo de fogão
Número de bocas no fogão
Cozinha embutida
Porta automática
Interfone com câmera
Câmeras de Segurança

Outros : Negociável para quem toca instrumentos musicais, Escritório, Animal de estimação, Antena CS, Antena BS, Com internet, Quarto infantil

Detalhes do imóvel
Ano de construção 2021/11
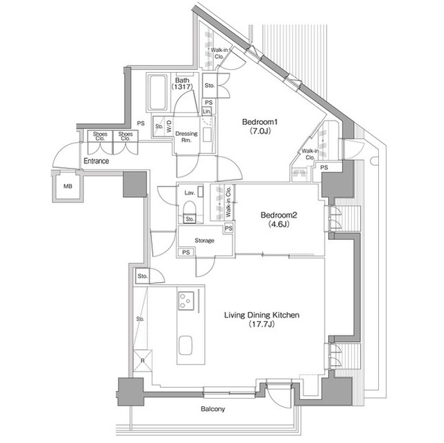
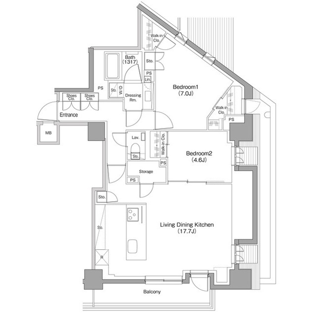
Planta da casa 2LDK / 6° andar
Área interna 71.54㎡
Estacionamento Indisponível
Área da construção RC
Localização
Direção que bate a luz do sol Nordeste
Entrega do imóvel 2026/03 Meados
Ultima atualização 2026/01/12
Valor base das despesas iniciais
Depósito de garantia
370,000 ¥
Luva
370,000 ¥
Pagamento adiantado de aluguel
¥
Valor do aluguel + condomínio + despesas com administração
Taxa de corretagem
¥
Preço de um mês de aluguel + taxas
Outros
¥
Total
1,500,000 ¥
Despesas médias por mês
Preço do aluguel
370,000 ¥
Despesa de condomínio・despesa com taxa de administração
20,000 ¥
Outros
¥
Total
390,000 ¥
Outras despesas
Preço para renovar o contrato
¥0
Despesa para troca de chaves
¥0
Despesa para limpeza do quarto
¥0
Pagamento da empresa de seguro
¥0
Taxa de seguro da residência
Confirmar com a imobiliária
Além destes itens há outros que podem gerar despesas. Pergunte o valor exato para a imobiliária.
Imóveis semelhantes
1K / 503号室 / 5° andar / 29m²
¥140,000 por mês
A página detalhada do Prédio de apartamentos ザ・パークハビオ小石川 604 pode ser vista na YOLO HOME, uma página especializada em imóveis em todo o Japão para intercambistas ou estrangeiros!
É possível pesquisar a partir do imóvel desejado. Procure um imóvel com as características ideais para você, como planta da casa, preço do aluguel, segurança, instalações e ambiente ao redor. A YOLO HOME apresentará informações de imóveis em todo o país para estrangeiros que queiram alugar um imóvel! Use o site de informações de imóveis da YOLO HOME para imóveis, como conjuntos residenciais, apartamentos e casas de aluguel para intercambistas ou estrangeiros.