Ver tudo
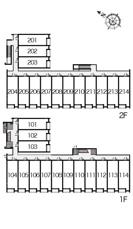
Prédio residencial レオネクストSunrise伊興 211
1R / 2° andar / 26.5m²
Favoritos
MobiliadoPorta eletrônica
Ambiente ao redor
Tokyo Adachi-ku 東京都足立区伊興 Ver no Google Maps
Instalação
Água quente
Local para a máquina de lavar roupa
Sacada
Bicicletário
Mobiliada (móveis e eletrodomésticos)
Cobertura
Banheira e banheiro separados
Vaso sanitário com lavagem de água quente
Secador de teto no banheiro
Pia independente
Cozinha Americana
Porta automática
Interfone com câmera
Câmeras de Segurança

Outros :Estudantes, Com internet

Detalhes do imóvel
Ano de construção 2015/09
Planta da casa 1R / 2° andar
Área interna 26.5㎡
Estacionamento -
Área da construção De madeira
Localização
Direção que bate a luz do sol Sudoeste
Entrega do imóvel 2026/02 Meados
Ultima atualização 2026/01/19
Valor base das despesas iniciais
Depósito de garantia
0 ¥
Luva
89,000 ¥
Pagamento adiantado de aluguel
¥
Valor do aluguel + condomínio + despesas com administração
Taxa de corretagem
¥
Preço de um mês de aluguel + taxas
Outros
¥
Total
272,500 ¥
Despesas médias por mês
Preço do aluguel
89,000 ¥
Despesa de condomínio・despesa com taxa de administração
5,500 ¥
Outros
¥
Total
94,500 ¥
Outras despesas
Preço para renovar o contrato
¥0
Despesa para troca de chaves
¥0
Despesa para limpeza do quarto
¥0
Pagamento da empresa de seguro
¥0
Taxa de seguro da residência
Confirmar com a imobiliária
Além destes itens há outros que podem gerar despesas. Pergunte o valor exato para a imobiliária.
Imóveis semelhantes
1R / 110号室 / 1° andar / 26.5m²
¥85,000 por mês
1R / 111号室 / 1° andar / 26.5m²
¥85,000 por mês
A página detalhada do Prédio residencial レオネクストSunrise伊興 211 pode ser vista na YOLO HOME, uma página especializada em imóveis em todo o Japão para intercambistas ou estrangeiros!
É possível pesquisar a partir do imóvel desejado. Procure um imóvel com as características ideais para você, como planta da casa, preço do aluguel, segurança, instalações e ambiente ao redor. A YOLO HOME apresentará informações de imóveis em todo o país para estrangeiros que queiram alugar um imóvel! Use o site de informações de imóveis da YOLO HOME para imóveis, como conjuntos residenciais, apartamentos e casas de aluguel para intercambistas ou estrangeiros.