Depósito de garantia
131,000 ¥
Luva
0 ¥
Pagamento adiantado de aluguel
¥
Valor do aluguel + condomínio + despesas com administração
Taxa de corretagem
¥
Preço de um mês de aluguel + taxas
Outros
¥
Total
413,000 ¥
Outros :Escritório, Animal de estimação, Aluguel por tempo fixo
| Ano de construção | 2026/02 (Novo) |
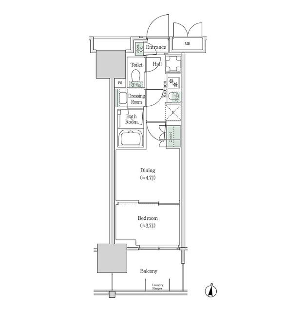
| Planta da casa | 2K / 2° andar |
| Área interna | 25.95㎡ |
| Estacionamento | Indisponível |
| Área da construção | RC |
| Localização | |
| Direção que bate a luz do sol | Sul |
| Entrega do imóvel | 2026/03 Meados |
| Ultima atualização | 2026/02/26 |

Valor base das despesas iniciais