Ver tudo
Prédio de apartamentos グランパセオ清澄白河 1005
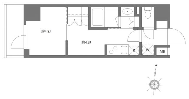
1DK / 10° andar / 25.44m²
Favoritos
Porta eletrônicaInternet gratuita Piso de tablado
Ambiente ao redor
Tokyo Koto-ku 石島 3-8 Ver no Google Maps
Instalação
Gás
Água quente
Local para a máquina de lavar roupa
Elevador
Sacada
Piso de madeira
Caixa de correio
Bicicletário
Estacionamento de moto
Taxa de uso da Internet
Armário de roupa
Cobertura
Banheira compartilhada
Banheiro compartilhado
Banheira e banheiro separados
Vaso sanitário com lavagem de água quente
Secador de teto no banheiro
Pia independente
Tipo de fogão
Número de bocas no fogão
Cozinha embutida
Porta automática
Câmeras de Segurança

Outros : Negociável para quem toca instrumentos musicais, Escritório, Animal de estimação, Água, Drenagem, Com internet, Armário para sapatos

Detalhes do imóvel
Ano de construção 2024/01
Planta da casa 1DK / 10° andar
Área interna 25.44㎡
Estacionamento -
Área da construção RC
Localização
Direção que bate a luz do sol Oeste
Entrega do imóvel 2026/02 null
Ultima atualização 2026/02/26
Valor base das despesas iniciais
Depósito de garantia
0 ¥
Luva
0 ¥
Pagamento adiantado de aluguel
¥
Valor do aluguel + condomínio + despesas com administração
Taxa de corretagem
¥
Preço de um mês de aluguel + taxas
Outros
¥
Total
298,000 ¥
Despesas médias por mês
Preço do aluguel
144,000 ¥
Despesa de condomínio・despesa com taxa de administração
10,000 ¥
Outros
¥
Total
154,000 ¥
Outras despesas
Preço para renovar o contrato
¥0
Despesa para troca de chaves
¥0
Despesa para limpeza do quarto
¥0
Pagamento da empresa de seguro
¥0
Taxa de seguro da residência
Confirmar com a imobiliária
Além destes itens há outros que podem gerar despesas. Pergunte o valor exato para a imobiliária.
Imóveis semelhantes
1DK / 0302号室 / 3° andar / 25.02m²
¥133,000 por mês
1DK / 0904号室 / 9° andar / 25.02m²
¥142,000 por mês
A página detalhada do Prédio de apartamentos グランパセオ清澄白河 1005 pode ser vista na YOLO HOME, uma página especializada em imóveis em todo o Japão para intercambistas ou estrangeiros!
É possível pesquisar a partir do imóvel desejado. Procure um imóvel com as características ideais para você, como planta da casa, preço do aluguel, segurança, instalações e ambiente ao redor. A YOLO HOME apresentará informações de imóveis em todo o país para estrangeiros que queiram alugar um imóvel! Use o site de informações de imóveis da YOLO HOME para imóveis, como conjuntos residenciais, apartamentos e casas de aluguel para intercambistas ou estrangeiros.