Ver tudo
Prédio de apartamentos リヴシティ上野入谷グロース 301
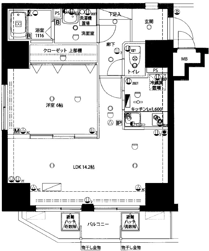
1LDK / 3° andar / 48.99m²
Favoritos
Porta eletrônicaInternet gratuita Permitido animais (a consultar)Não precisa de fiadorPiso de tablado
Ambiente ao redor
Tokyo Taito-ku 入谷1丁目 10-4 Ver no Google Maps
Instalação
Gás
Local para a máquina de lavar roupa
Elevador
Sacada
Piso de madeira
Caixa de correio
Apartamento de canto
Taxa de uso da Internet
Armário de roupa
Banheira compartilhada
Banheiro compartilhado
Banheira e banheiro separados
Secador de teto no banheiro
Pia independente
Tipo de fogão
Número de bocas no fogão
Cozinha embutida
Porta automática
Interfone com câmera

Outros : Negociável para quem toca instrumentos musicais, Escritório, Estudantes, Animal de estimação, Fiador, Água, Drenagem, Com internet, Armário para sapatos

Detalhes do imóvel
Ano de construção 2013/01
Planta da casa 1LDK / 3° andar
Área interna 48.99㎡
Estacionamento -
Área da construção RC
Localização
Direção que bate a luz do sol Oeste
Entrega do imóvel
Ultima atualização 2026/03/01
Valor base das despesas iniciais
Depósito de garantia
0 ¥
Luva
0 ¥
Pagamento adiantado de aluguel
¥
Valor do aluguel + condomínio + despesas com administração
Taxa de corretagem
¥
Preço de um mês de aluguel + taxas
Outros
¥
Total
350,000 ¥
Despesas médias por mês
Preço do aluguel
170,000 ¥
Despesa de condomínio・despesa com taxa de administração
10,000 ¥
Outros
¥
Total
180,000 ¥
Outras despesas
Preço para renovar o contrato
¥0
Despesa para troca de chaves
¥0
Despesa para limpeza do quarto
¥0
Pagamento da empresa de seguro
¥0
Taxa de seguro da residência
Confirmar com a imobiliária
Além destes itens há outros que podem gerar despesas. Pergunte o valor exato para a imobiliária.
A página detalhada do Prédio de apartamentos リヴシティ上野入谷グロース 301 pode ser vista na YOLO HOME, uma página especializada em imóveis em todo o Japão para intercambistas ou estrangeiros!
É possível pesquisar a partir do imóvel desejado. Procure um imóvel com as características ideais para você, como planta da casa, preço do aluguel, segurança, instalações e ambiente ao redor. A YOLO HOME apresentará informações de imóveis em todo o país para estrangeiros que queiram alugar um imóvel! Use o site de informações de imóveis da YOLO HOME para imóveis, como conjuntos residenciais, apartamentos e casas de aluguel para intercambistas ou estrangeiros.