Ver tudo
Prédio de apartamentos クアトロノーヴェ梅島 201
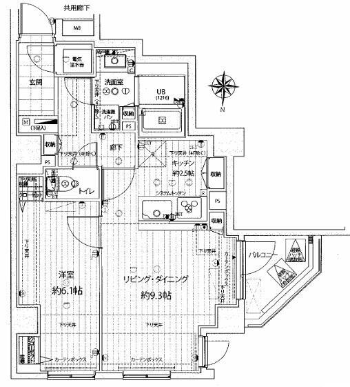
1LDK / 2° andar / 47.6m²
Favoritos
Porta eletrônica
Ambiente ao redor
Tokyo Adachi-ku 中央本町1丁目 Ver no Google Maps
Instalação
Local para a máquina de lavar roupa
Elevador
Sacada
Caixa de correio
Armário de roupa
Banheira compartilhada
Banheiro compartilhado
Banheira e banheiro separados
Chuveiro
Pia independente
Tipo de fogão
Porta automática
Interfone com câmera
Câmeras de Segurança

Outros :Armário para sapatos

Detalhes do imóvel
Ano de construção 2014/05
Planta da casa 1LDK / 2° andar
Área interna 47.6㎡
Estacionamento -
Área da construção RC
Localização
Direção que bate a luz do sol
Entrega do imóvel 2026/03 Final ¥
Ultima atualização 2026/04/06
Valor base das despesas iniciais
Depósito de garantia
0 ¥
Luva
0 ¥
Pagamento adiantado de aluguel
¥
Valor do aluguel + condomínio + despesas com administração
Taxa de corretagem
¥
Preço de um mês de aluguel + taxas
Outros
¥
Total
248,000 ¥
Despesas médias por mês
Preço do aluguel
118,000 ¥
Despesa de condomínio・despesa com taxa de administração
12,000 ¥
Outros
¥
Total
130,000 ¥
Outras despesas
Preço para renovar o contrato
¥0
Despesa para troca de chaves
¥0
Despesa para limpeza do quarto
¥0
Pagamento da empresa de seguro
¥0
Taxa de seguro da residência
Confirmar com a imobiliária
Além destes itens há outros que podem gerar despesas. Pergunte o valor exato para a imobiliária.
A página detalhada do Prédio de apartamentos クアトロノーヴェ梅島 201 pode ser vista na YOLO HOME, uma página especializada em imóveis em todo o Japão para intercambistas ou estrangeiros!
É possível pesquisar a partir do imóvel desejado. Procure um imóvel com as características ideais para você, como planta da casa, preço do aluguel, segurança, instalações e ambiente ao redor. A YOLO HOME apresentará informações de imóveis em todo o país para estrangeiros que queiram alugar um imóvel! Use o site de informações de imóveis da YOLO HOME para imóveis, como conjuntos residenciais, apartamentos e casas de aluguel para intercambistas ou estrangeiros.