Ver tudo
Prédio de apartamentos リバーポイントタワー 1308
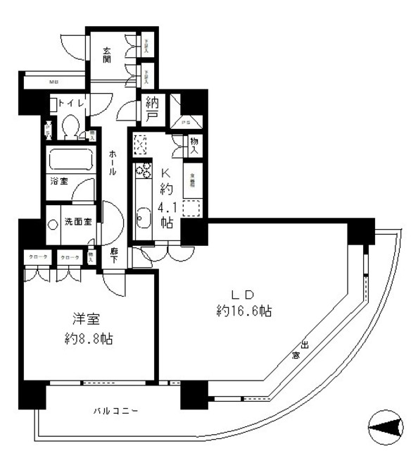
1LDK / 13° andar / 72.69m²
Favoritos
Lixo pode ser tirado 24 horas por dia Porta eletrônica
Ambiente ao redor
Tokyo Chuo-ku 佃1丁目 11-6 Ver no Google Maps
Instalação
Local para a máquina de lavar roupa
Elevador
Sacada
Caixa de correio
Descarte de lixo 24 horas
Banheira compartilhada
Banheira e banheiro separados
Recurso de aquecimento da água da banheira
Secador de teto no banheiro
Pia independente
Tipo de fogão
Cozinha embutida
Porta automática

Outros : Negociável para quem toca instrumentos musicais, Escritório, Antena CS, Antena BS, Com internet, Serviço de recepção

Detalhes do imóvel
Ano de construção 1989/03
Planta da casa 1LDK / 13° andar
Área interna 72.69㎡
Estacionamento Indisponível
Área da construção SRC
Localização
Direção que bate a luz do sol Sudoeste
Entrega do imóvel
Ultima atualização 2026/04/04
Valor base das despesas iniciais
Depósito de garantia
383,000 ¥
Luva
383,000 ¥
Pagamento adiantado de aluguel
¥
Valor do aluguel + condomínio + despesas com administração
Taxa de corretagem
¥
Preço de um mês de aluguel + taxas
Outros
¥
Total
1,532,000 ¥
Despesas médias por mês
Preço do aluguel
383,000 ¥
Despesa de condomínio・despesa com taxa de administração
0 ¥
Outros
¥
Total
383,000 ¥
Outras despesas
Preço para renovar o contrato
¥0
Despesa para troca de chaves
¥0
Despesa para limpeza do quarto
¥0
Pagamento da empresa de seguro
¥0
Taxa de seguro da residência
Confirmar com a imobiliária
Além destes itens há outros que podem gerar despesas. Pergunte o valor exato para a imobiliária.
Imóveis semelhantes
1LDK / 1704号室 / 17° andar / 58.46m²
¥294,000 por mês
2LDK / 3303号室 / 33° andar / 75.88m²
¥395,000 por mês
2LDK / 1812号室 / 18° andar / 81.2m²
¥428,000 por mês
1LDK / 1305号室 / 13° andar / 72.69m²
¥344,000 por mês
1LDK / 2005号室 / 20° andar / 72.69m²
¥351,000 por mês
A página detalhada do Prédio de apartamentos リバーポイントタワー 1308 pode ser vista na YOLO HOME, uma página especializada em imóveis em todo o Japão para intercambistas ou estrangeiros!
É possível pesquisar a partir do imóvel desejado. Procure um imóvel com as características ideais para você, como planta da casa, preço do aluguel, segurança, instalações e ambiente ao redor. A YOLO HOME apresentará informações de imóveis em todo o país para estrangeiros que queiram alugar um imóvel! Use o site de informações de imóveis da YOLO HOME para imóveis, como conjuntos residenciais, apartamentos e casas de aluguel para intercambistas ou estrangeiros.