Ver tudo
Prédio de apartamentos エスコート両国 301
1K / 3° andar / 20.9m²
Favoritos
Porta eletrônicaNão precisa de fiador
Ambiente ao redor
Tokyo Sumida-ku 両国3丁目 16-5 Ver no Google Maps
Instalação
Gás
Local para a máquina de lavar roupa
Elevador
Caixa de correio
Armário de roupa
Banheira compartilhada
Banheiro compartilhado
Banheira e banheiro separados
Tipo de fogão
Número de bocas no fogão
Cozinha embutida
Porta automática

Outros : Negociável para quem toca instrumentos musicais, Escritório, Dois moradores, Animal de estimação, Fiador, Água, Drenagem, Com internet

Detalhes do imóvel
Ano de construção 2000/02
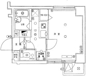
Planta da casa 1K / 3° andar
Área interna 20.9㎡
Estacionamento -
Área da construção RC
Localização
Direção que bate a luz do sol
Entrega do imóvel 2026/05 Início
Ultima atualização 2026/02/26
Valor base das despesas iniciais
Depósito de garantia
0 ¥
Luva
0 ¥
Pagamento adiantado de aluguel
¥
Valor do aluguel + condomínio + despesas com administração
Taxa de corretagem
¥
Preço de um mês de aluguel + taxas
Outros
¥
Total
200,000 ¥
Despesas médias por mês
Preço do aluguel
100,000 ¥
Despesa de condomínio・despesa com taxa de administração
0 ¥
Outros
¥
Total
100,000 ¥
Outras despesas
Preço para renovar o contrato
¥0
Despesa para troca de chaves
¥0
Despesa para limpeza do quarto
¥0
Pagamento da empresa de seguro
¥0
Taxa de seguro da residência
Confirmar com a imobiliária
Além destes itens há outros que podem gerar despesas. Pergunte o valor exato para a imobiliária.
Imóveis semelhantes
1K / 205号室 / 2° andar / 21.36m²
¥89,000 por mês
A página detalhada do Prédio de apartamentos エスコート両国 301 pode ser vista na YOLO HOME, uma página especializada em imóveis em todo o Japão para intercambistas ou estrangeiros!
É possível pesquisar a partir do imóvel desejado. Procure um imóvel com as características ideais para você, como planta da casa, preço do aluguel, segurança, instalações e ambiente ao redor. A YOLO HOME apresentará informações de imóveis em todo o país para estrangeiros que queiram alugar um imóvel! Use o site de informações de imóveis da YOLO HOME para imóveis, como conjuntos residenciais, apartamentos e casas de aluguel para intercambistas ou estrangeiros.