Ver tudo
Prédio de apartamentos ヴァレッシア錦糸町シティ 201
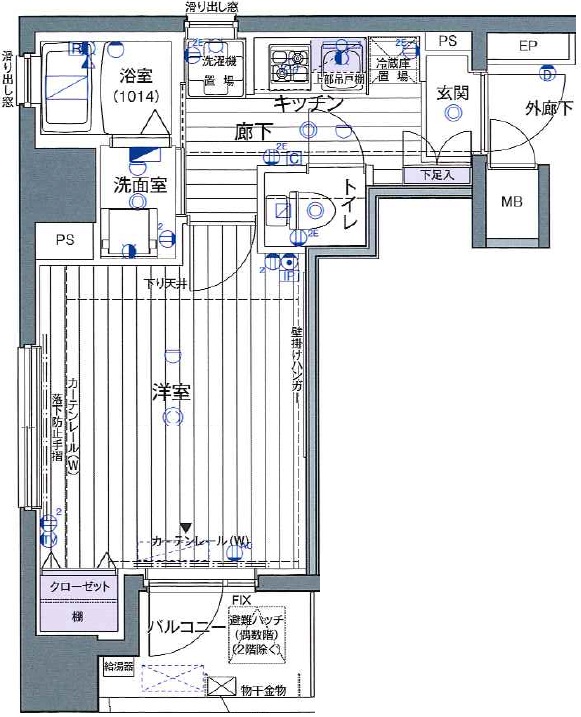
1K / 2° andar / 22.99m²
Favoritos
Lixo pode ser tirado 24 horas por dia Porta eletrônicaPiso de tablado
Ambiente ao redor
Tokyo Sumida-ku 横川2丁目 Ver no Google Maps
Instalação
Gás
Água quente
Local para a máquina de lavar roupa
Elevador
Sacada
Piso de madeira
Caixa de correio
Bicicletário
Estacionamento de moto
Apartamento de canto
Descarte de lixo 24 horas
Armário de roupa
Banheira compartilhada
Banheiro compartilhado
Banheira e banheiro separados
Chuveiro
Vaso sanitário com lavagem de água quente
Secador de teto no banheiro
Pia independente
Tipo de fogão
Número de bocas no fogão
Cozinha embutida
Porta automática
Interfone com câmera
Câmeras de Segurança
Empresa de segurança

Outros :Dois moradores, Água, Drenagem, Janela da sacada saliente, Revestido com azulejo, Armário para sapatos

Detalhes do imóvel
Ano de construção 2011/02
Planta da casa 1K / 2° andar
Área interna 22.99㎡
Estacionamento -
Área da construção RC
Localização
Direção que bate a luz do sol
Entrega do imóvel 2026/04 Início
Ultima atualização 2026/02/26
Valor base das despesas iniciais
Depósito de garantia
0 ¥
Luva
105,000 ¥
Pagamento adiantado de aluguel
¥
Valor do aluguel + condomínio + despesas com administração
Taxa de corretagem
¥
Preço de um mês de aluguel + taxas
Outros
¥
Total
330,000 ¥
Despesas médias por mês
Preço do aluguel
105,000 ¥
Despesa de condomínio・despesa com taxa de administração
15,000 ¥
Outros
¥
Total
120,000 ¥
Outras despesas
Preço para renovar o contrato
¥0
Despesa para troca de chaves
¥0
Despesa para limpeza do quarto
¥0
Pagamento da empresa de seguro
¥0
Taxa de seguro da residência
Confirmar com a imobiliária
Além destes itens há outros que podem gerar despesas. Pergunte o valor exato para a imobiliária.
A página detalhada do Prédio de apartamentos ヴァレッシア錦糸町シティ 201 pode ser vista na YOLO HOME, uma página especializada em imóveis em todo o Japão para intercambistas ou estrangeiros!
É possível pesquisar a partir do imóvel desejado. Procure um imóvel com as características ideais para você, como planta da casa, preço do aluguel, segurança, instalações e ambiente ao redor. A YOLO HOME apresentará informações de imóveis em todo o país para estrangeiros que queiram alugar um imóvel! Use o site de informações de imóveis da YOLO HOME para imóveis, como conjuntos residenciais, apartamentos e casas de aluguel para intercambistas ou estrangeiros.