Ver tudo
Prédio de apartamentos ビレッジハウス南清水タワー1号棟 0825
2DK / 8° andar / 39.8m²
Favoritos
Ambiente ao redor
Hyogo Amagasaki-shi 南清水 36-1 Ver no Google Maps
Instalação
Gás
Água quente
Local para a máquina de lavar roupa
Elevador
Sacada
Banheira e banheiro separados
Recurso de aquecimento da água da banheira
Tipo de fogão
Número de bocas no fogão

Outros :Dois moradores, Drenagem, Com internet

Detalhes do imóvel
Ano de construção 1976/02
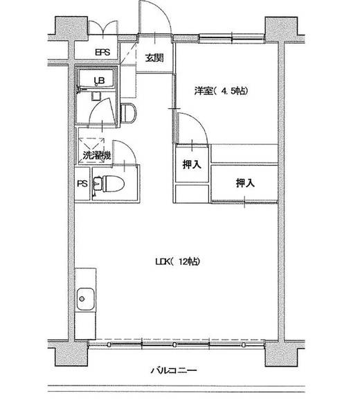
Planta da casa 2DK / 8° andar
Área interna 39.8㎡
Estacionamento Disponível ¥9900
Área da construção SRC
Localização
Direção que bate a luz do sol Sudoeste
Entrega do imóvel
Ultima atualização 2026/03/02
Valor base das despesas iniciais
Depósito de garantia
0 ¥
Luva
0 ¥
Pagamento adiantado de aluguel
¥
Valor do aluguel + condomínio + despesas com administração
Taxa de corretagem
¥
Preço de um mês de aluguel + taxas
Outros
¥
Total
120,200 ¥
Despesas médias por mês
Preço do aluguel
60,100 ¥
Despesa de condomínio・despesa com taxa de administração
0 ¥
Outros
¥
Total
60,100 ¥
Outras despesas
Preço para renovar o contrato
¥0
Despesa para troca de chaves
¥0
Despesa para limpeza do quarto
¥0
Pagamento da empresa de seguro
¥0
Taxa de seguro da residência
Confirmar com a imobiliária
Além destes itens há outros que podem gerar despesas. Pergunte o valor exato para a imobiliária.
Imóveis semelhantes
1LDK / 0632号室 / 6° andar / 39.8m²
¥59,000 por mês
A página detalhada do Prédio de apartamentos ビレッジハウス南清水タワー1号棟 0825 pode ser vista na YOLO HOME, uma página especializada em imóveis em todo o Japão para intercambistas ou estrangeiros!
É possível pesquisar a partir do imóvel desejado. Procure um imóvel com as características ideais para você, como planta da casa, preço do aluguel, segurança, instalações e ambiente ao redor. A YOLO HOME apresentará informações de imóveis em todo o país para estrangeiros que queiram alugar um imóvel! Use o site de informações de imóveis da YOLO HOME para imóveis, como conjuntos residenciais, apartamentos e casas de aluguel para intercambistas ou estrangeiros.