Ver tudo
Prédio residencial ソレジオ孝元 203号室
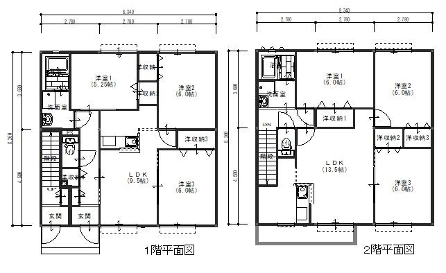
3LDK / 2° andar / 74.1m²
Favoritos
Não precisa de fiadorPiso de tablado
Ambiente ao redor
Shiga Higashiomi-shi 妙法寺町 763-3 Ver no Google Maps
Instalação
Gás
Local para a máquina de lavar roupa
Sacada
Piso de madeira
Bicicletário
Apartamento de canto
Cobertura
Banheira e banheiro separados
Recurso de aquecimento da água da banheira
Pia e lavatório com chuveiro
Vaso sanitário com lavagem de água quente
Cozinha Americana
Interfone com câmera
Empresa de segurança

Outros :Escritório, Dois moradores, Fiador, Drenagem, Antena BS, Armário para sapatos

Detalhes do imóvel
Ano de construção 2004/02
Planta da casa 3LDK / 2° andar
Área interna 74.1㎡
Estacionamento Disponível 2 veículo ¥3300 A 0m do imóvel
Área da construção Estrutura de aço
Localização
Direção que bate a luz do sol Sul
Entrega do imóvel
Ultima atualização 2026/05/23
Valor base das despesas iniciais
Depósito de garantia
0 ¥
Luva
0 ¥
Pagamento adiantado de aluguel
¥
Valor do aluguel + condomínio + despesas com administração
Taxa de corretagem
¥
Preço de um mês de aluguel + taxas
Outros
¥
Total
130,000 ¥
Despesas médias por mês
Preço do aluguel
63,000 ¥
Despesa de condomínio・despesa com taxa de administração
4,000 ¥
Outros
¥
Total
67,000 ¥
Outras despesas
Preço para renovar o contrato
¥0
Despesa para troca de chaves
¥0
Despesa para limpeza do quarto
¥0
Pagamento da empresa de seguro
¥0
Taxa de seguro da residência
Confirmar com a imobiliária
Além destes itens há outros que podem gerar despesas. Pergunte o valor exato para a imobiliária.
A página detalhada do Prédio residencial ソレジオ孝元 203号室 pode ser vista na YOLO HOME, uma página especializada em imóveis em todo o Japão para intercambistas ou estrangeiros!
É possível pesquisar a partir do imóvel desejado. Procure um imóvel com as características ideais para você, como planta da casa, preço do aluguel, segurança, instalações e ambiente ao redor. A YOLO HOME apresentará informações de imóveis em todo o país para estrangeiros que queiram alugar um imóvel! Use o site de informações de imóveis da YOLO HOME para imóveis, como conjuntos residenciais, apartamentos e casas de aluguel para intercambistas ou estrangeiros.