Prédio de apartamentos グランドメゾン江戸堀 903
3LDK / 9° andar / 69.76m²
Favoritos
Porta eletrônica
Ambiente ao redor
Osaka Osaka-shi Nishi-ku 江戸堀3丁目 6-5 Ver no Google Maps
Instalação
Local para a máquina de lavar roupa
Elevador
Sacada
Caixa de correio
Banheira compartilhada
Banheira e banheiro separados
Secador de teto no banheiro
Cozinha embutida
Porta automática

Outros :Escritório, CATV, Antena BS

Detalhes do imóvel
Ano de construção 1998/09
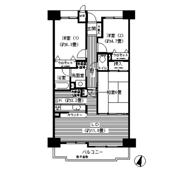
Planta da casa 3LDK / 9° andar
Área interna 69.76㎡
Estacionamento Indisponível
Área da construção SRC
Localização
Direção que bate a luz do sol Sul
Entrega do imóvel 2026/06 Final ¥
Ultima atualização 2026/04/16
Valor base das despesas iniciais
Depósito de garantia
172,000 ¥
Luva
344,000 ¥
Pagamento adiantado de aluguel
¥
Valor do aluguel + condomínio + despesas com administração
Taxa de corretagem
¥
Preço de um mês de aluguel + taxas
Outros
¥
Total
845,000 ¥
Despesas médias por mês
Preço do aluguel
157,000 ¥
Despesa de condomínio・despesa com taxa de administração
15,000 ¥
Outros
¥
Total
172,000 ¥
Outras despesas
Preço para renovar o contrato
¥0
Despesa para troca de chaves
¥0
Despesa para limpeza do quarto
¥0
Pagamento da empresa de seguro
¥0
Taxa de seguro da residência
Confirmar com a imobiliária
Além destes itens há outros que podem gerar despesas. Pergunte o valor exato para a imobiliária.
A página detalhada do Prédio de apartamentos グランドメゾン江戸堀 903 pode ser vista na YOLO HOME, uma página especializada em imóveis em todo o Japão para intercambistas ou estrangeiros!
É possível pesquisar a partir do imóvel desejado. Procure um imóvel com as características ideais para você, como planta da casa, preço do aluguel, segurança, instalações e ambiente ao redor. A YOLO HOME apresentará informações de imóveis em todo o país para estrangeiros que queiram alugar um imóvel! Use o site de informações de imóveis da YOLO HOME para imóveis, como conjuntos residenciais, apartamentos e casas de aluguel para intercambistas ou estrangeiros.