Ver tudo
Prédio de apartamentos レオパレス平尾 205
1K / 2° andar / 19.87m²
Favoritos
Mobiliado
Ambiente ao redor
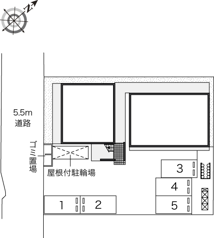
Fukuoka Fukuoka-shi Chuo-ku 福岡県福岡市中央区平尾 Ver no Google Maps
Instalação
Água quente
Local para a máquina de lavar roupa
Sacada
Bicicletário
Mobiliada (móveis e eletrodomésticos)
Banheira e banheiro separados
Vaso sanitário com lavagem de água quente
Secador de teto no banheiro
Tipo de fogão
Interfone com câmera

Outros :Com internet

Detalhes do imóvel
Ano de construção 2010/03
Planta da casa 1K / 2° andar
Área interna 19.87㎡
Estacionamento -
Área da construção Estrutura de aço
Localização
Direção que bate a luz do sol Sudeste
Entrega do imóvel 2026/05 Meados
Ultima atualização 2026/04/04
Valor base das despesas iniciais
Depósito de garantia
0 ¥
Luva
0 ¥
Pagamento adiantado de aluguel
¥
Valor do aluguel + condomínio + despesas com administração
Taxa de corretagem
¥
Preço de um mês de aluguel + taxas
Outros
¥
Total
143,000 ¥
Despesas médias por mês
Preço do aluguel
68,000 ¥
Despesa de condomínio・despesa com taxa de administração
7,000 ¥
Outros
¥
Total
75,000 ¥
Outras despesas
Preço para renovar o contrato
¥0
Despesa para troca de chaves
¥0
Despesa para limpeza do quarto
¥0
Pagamento da empresa de seguro
¥0
Taxa de seguro da residência
Confirmar com a imobiliária
Além destes itens há outros que podem gerar despesas. Pergunte o valor exato para a imobiliária.
A página detalhada do Prédio de apartamentos レオパレス平尾 205 pode ser vista na YOLO HOME, uma página especializada em imóveis em todo o Japão para intercambistas ou estrangeiros!
É possível pesquisar a partir do imóvel desejado. Procure um imóvel com as características ideais para você, como planta da casa, preço do aluguel, segurança, instalações e ambiente ao redor. A YOLO HOME apresentará informações de imóveis em todo o país para estrangeiros que queiram alugar um imóvel! Use o site de informações de imóveis da YOLO HOME para imóveis, como conjuntos residenciais, apartamentos e casas de aluguel para intercambistas ou estrangeiros.