Tiền đặt cọc
0 yên
Tiền lễ
0 yên
Tiền nhà trước đây
yên
Tiền thuê + phí dịch vụ chung, phí quản lý
Phí trung gian
yên
Tiền nhà 1 tháng + thuế
Khác
yên
Tổng
132,330 yên
Khác :Ăng ten BS, Hộp đựng giày
| Tháng năm xây dựng | 2026/01 (Xây mới) |
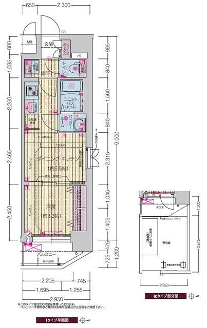
| Bố trí nhà ở | 1K / 4 tầng |
| Diện tích | 21.83㎡ |
| Bãi đỗ xe | Không |
| Cấu trúc xây dựng | RC |
| Vị trí | |
| Mặt được nắng chiếu chính | Phía Tây |
| Chuyển | 2026/02 Hạ tuần (10 ngày cuối tháng) |
| Cập nhật mới nhất | 2026/01/02 |

Mục tiêu chi phí đầu kì