Tiền đặt cọc
0 yên
Tiền lễ
0 yên
Tiền nhà trước đây
yên
Tiền thuê + phí dịch vụ chung, phí quản lý
Phí trung gian
yên
Tiền nhà 1 tháng + thuế
Khác
yên
Tổng
130,450 yên
Khác :Ăng ten BS, Hộp đựng giày
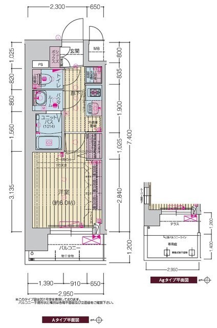
| Tháng năm xây dựng | 2026/01 (Xây mới) |
| Bố trí nhà ở | 1K / 1 tầng |
| Diện tích | 21.83㎡ |
| Bãi đỗ xe | Không |
| Cấu trúc xây dựng | RC |
| Vị trí | Nhà ở tầng 1 |
| Mặt được nắng chiếu chính | Phía Tây |
| Chuyển | 2026/02 Hạ tuần (10 ngày cuối tháng) |
| Cập nhật mới nhất | 2025/12/20 |

Mục tiêu chi phí đầu kì