外国人找工作、找房子的话YOLO JAPAN
找工作
体验调查员
FAQ
浏览记录
收藏夹
登录
注册会员
Chinese
YOLO HOME,面向国际学生和外国人的房地产和租赁信息网站
长野县
Nakano-shi
楼房 レオパレスクレール 103
图片
周边环境
设施
物业详情
初期费用
每月费用
1/28
全部查看
1/28
楼房 レオパレスクレール 103
1K / 1楼 / 26.49m²
收藏夹
共享
复制网址
带家具家电
木地板
周边环境
长野县 Nakano-shi 長野県中野市西
在谷歌地图上查看
查看街景
设施
建筑设施
浴室·卫生间
厨房
安全
热水供应
洗衣机置物间
阳台
地板
配有家具和家用电器
独立浴室、厕所
温水洗马桶座
灶台类型
物业详情
建筑物年龄
1997/08
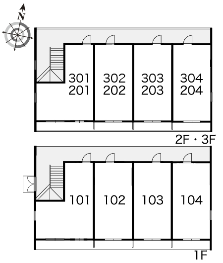
平面图
1K / 1楼
占地面积
26.49㎡
停车场
有空屋 (1台) 3850日元 到物业的距离0m
建筑结构
钢架
位置
一楼的房间
主要采光面
交货
最近更新时间
2026/03/01
查询空房情况
参观这个房间
估计初始费用
保证金
0
日元
礼金
45,000
日元
以前的租金
日元
租金+共益费/管理费
中介费
日元
月租金+税
其他
日元
总计
140,000
日元
估计每月费用
房租费
45,000
日元
维护费,管理费等
5,000
日元
其他
日元
总计
50,000
日元
估计其他费用
更新费
¥0
更换钥匙费
¥0
室内清洁费
¥0
保险公司使用费
¥0
房屋保险费
与房地产公司确认
除这些项目外,可能还有其他费用。<br>请与房地产代理商联系以获取确切金额。
同一建筑物内的其他房间
1K /
204号室 /
2楼 / 26.49m²
¥41,000
/月
1K /
301号室 /
3楼 / 29.81m²
¥51,000
/月
1K /
104号室 /
1楼 / 26.49m²
¥46,000
/月
1K /
203号室 /
2楼 / 26.49m²
¥47,000
/月
1K /
101号室 /
1楼 / 29.81m²
¥48,000
/月
推荐给正在查看此物业的人的物业信息
¥48,000
/月
管理费:¥5,000
29.81㎡ 1LDK K
建筑年龄更浅
¥57,000
/月
管理费:¥5,000
21.81㎡ 1LDK K
建筑年龄更浅
¥54,000
/月
管理费:¥7,000
23.18㎡ 1LDK K
建筑年龄更浅
¥51,000
/月
管理费:¥7,000
23.18㎡ 1LDK K
建筑年龄更浅
¥54,000
/月
管理费:¥5,000
23.18㎡ 1LDK K
建筑年龄更浅
¥54,000
/月
管理费:¥5,000
23.18㎡ 1LDK K
建筑年龄更浅
¥54,000
/月
管理费:¥7,000
23.18㎡ 1LDK K
建筑年龄更浅
¥54,000
/月
管理费:¥7,000
23.18㎡ 1LDK K
建筑年龄更浅
¥51,000
/月
管理费:¥5,000
23.18㎡ 1LDK K
建筑年龄更浅
¥51,000
/月
管理费:¥7,000
23.18㎡ 1LDK K
面积更广
¥66,000
/月
管理费:¥7,500
48.44㎡ 1LDK LDK
建筑年龄更浅
¥52,000
/月
管理费:¥5,000
23.18㎡ 1LDK K
建筑年龄更浅
¥52,000
/月
管理费:¥7,000
23.61㎡ 1LDK K
¥47,000
/月
管理费:¥5,000
26.49㎡ 1LDK K
建筑年龄更浅
¥51,000
/月
管理费:¥5,000
23.18㎡ 1LDK K
建筑年龄更浅
¥60,000
/月
管理费:¥5,000
21.81㎡ 1LDK K
建筑年龄更浅
¥54,000
/月
管理费:¥7,000
23.18㎡ 1LDK K
面积更广
¥63,000
/月
管理费:¥7,500
48.44㎡ 1LDK LDK
¥46,000
/月
管理费:¥5,000
26.49㎡ 1LDK K
建筑年龄更浅
¥54,000
/月
管理费:¥5,000
23.18㎡ 1LDK K
按在意的主题来查找长野县Nakano-shi的租赁房屋信息
无保证金和礼金
不需要保证人
带家具家电
一个人生活
学生/留学生
面向家庭的房屋
新婚/恋人
可以用信用卡支付
可以养宠物,需商量
精心设计
装修
安全
从车站步行10分钟以内
摩托车停放处
有自行车停车场
有停车场
按长野县Nakano-shi的00站查找
JR Iiyama line
Kami Imai
Kaesa
Nagano Railway-Nagano line
Sakurasawa
Entoku
Shinshunakano
Nakanomatsukawa
Shinanotakehara
楼房レオパレスクレール 103 的详细信息页面。如果您正在寻找面向外国人的房屋出租信息以及留学生专用的房间的话,YOLO HOME!
您可以从所需条件中搜索。请从房间布局,租金,安全性,设施信息,周围环境等中找到您理想中的租赁物业。全国面向外国人的房屋出租,房屋查找,房地产信息,请介绍YOLO HOME! YOLO HOME是面向留学生和外国人的房地产租赁信息网站,如果您想租用出租公寓,出租高级公寓,出租房屋等。