外国人找工作、找房子的话YOLO JAPAN
找工作
体验调查员
FAQ
浏览记录
收藏夹
登录
注册会员
Chinese
YOLO HOME,面向国际学生和外国人的房地产和租赁信息网站
东京都
Adachi-ku
楼房 ヴィラ西新井 205
图片
周边环境
设施
物业详情
初期费用
每月费用
1/15
全部查看
1/15
楼房 ヴィラ西新井 205
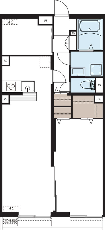
1K / 2楼 / 26.08m²
收藏夹
共享
复制网址
自动锁
木地板
周边环境
东京都 Adachi-ku 島根4丁目
13-24
在谷歌地图上查看
查看街景
设施
建筑设施
浴室·卫生间
厨房
安全
煤气
热水供应
洗衣机置物间
地板
快递箱
转角房间
带照明设备
独立浴室、厕所
淋浴
温水洗马桶座
浴室烘干机
独立洗手间
炉子数
系统厨房
自动锁
电视耳机
其他:单身者, 宠物, 定期租房权, 自来水, BS天线, 鞋盒
物业详情
建筑物年龄
2024/02
平面图
1K / 2楼
占地面积
26.08㎡
停车场
没有空屋 0日元
建筑结构
钢架
位置
主要采光面
东南
交货
2026/01 下旬 ¥
最近更新时间
2025/12/20
查询空房情况
参观这个房间
估计初始费用
保证金
0
日元
礼金
82,000
日元
以前的租金
日元
租金+共益费/管理费
中介费
日元
月租金+税
其他
日元
总计
249,000
日元
估计每月费用
房租费
82,000
日元
维护费,管理费等
3,000
日元
其他
日元
总计
85,000
日元
估计其他费用
更新费
¥0
更换钥匙费
¥0
室内清洁费
¥0
保险公司使用费
¥0
房屋保险费
与房地产公司确认
除这些项目外,可能还有其他费用。<br>请与房地产代理商联系以获取确切金额。
同一建筑物内的其他房间
1SLDK /
110号室 /
1楼 / 57.13m²
¥135,000
/月
推荐给正在查看此物业的人的物业信息
租金跟便宜
¥65,000
/月
管理费:¥5,000
15㎡ 1LDK K
租金跟便宜
¥76,000
/月
管理费:¥5,500
21.47㎡ 1LDK K
租金跟便宜
¥69,000
/月
管理费:¥5,500
19.87㎡ 1LDK K
建筑年龄更浅
¥79,000
/月
管理费:¥10,000
20.12㎡ 1LDK R
租金跟便宜
¥57,000
/月
管理费:¥3,000
17.59㎡ 1LDK K
面积更广
¥155,000
/月
管理费:¥15,000
41.83㎡ 1LDK LDK
建筑年龄更浅
¥79,000
/月
管理费:¥10,000
20.12㎡ 1LDK R
面积更广
¥145,000
/月
管理费:¥15,000
41.83㎡ 1LDK LDK
租金跟便宜
¥71,000
/月
管理费:¥5,000
19.56㎡ 1LDK K
租金跟便宜
¥61,000
/月
管理费:¥3,000
19.6㎡ 1LDK R
租金跟便宜
¥65,000
/月
管理费:¥3,000
16.17㎡ 1LDK K
租金跟便宜
¥69,000
/月
管理费:¥5,000
21.78㎡ 1LDK R
¥92,000
/月
管理费:¥5,500
24.84㎡ 1LDK K
租金跟便宜
¥77,000
/月
管理费:¥5,500
21.9㎡ 1LDK K
租金跟便宜
¥64,000
/月
管理费:¥5,500
20.28㎡ 1LDK K
租金跟便宜
¥72,000
/月
管理费:¥3,000
20.45㎡ 1LDK K
租金跟便宜
¥67,000
/月
管理费:¥3,000
40.5㎡ 1LDK LDK
建筑年龄更浅
¥93,000
/月
管理费:¥4,000
20.22㎡ 1LDK K
面积更广
¥160,000
/月
管理费:¥10,000
41㎡ 1LDK SLDK
¥109,000
/月
管理费:¥12,000
25.8㎡ 1LDK K
按在意的主题来查找东京都Adachi-ku的租赁房屋信息
无保证金和礼金
不需要保证人
带家具家电
一个人生活
学生/留学生
面向家庭的房屋
新婚/恋人
可以用信用卡支付
可以养宠物,需商量
精心设计
装修
安全
从车站步行10分钟以内
摩托车停放处
有自行车停车场
有停车场
按东京都Adachi-ku的00站查找
JR Joban line
Kita Senju
Ayase
Tokyo Metro-Hibiya line
Kita Senju
Tokyo Metro-Chiyoda line
Kita Senju
Ayase
Kita Ayase
Tobu-Isesaki line
Kita Senju
Horikiri
Ushida
Kosuge
Gotanno
Umejima
Nishi Arai
Takenotsuka
Tsukuba Express
Kita Senju
Aoi
Rokucho
Tobu-Daishi line
Nishi Arai
Daishimae
Keisei-Main line
Senjuohashi
Keisei Sekiya
Nippori Toneri Liner
Adachi Odai
Ogi Ohashi
Koya
Kohoku
Nishiaraidaishi Nishi
Yazaike
Toneri Koen
Toneri
Minumadai Shinsuikoen
楼房ヴィラ西新井 205 的详细信息页面。如果您正在寻找面向外国人的房屋出租信息以及留学生专用的房间的话,YOLO HOME!
您可以从所需条件中搜索。请从房间布局,租金,安全性,设施信息,周围环境等中找到您理想中的租赁物业。全国面向外国人的房屋出租,房屋查找,房地产信息,请介绍YOLO HOME! YOLO HOME是面向留学生和外国人的房地产租赁信息网站,如果您想租用出租公寓,出租高级公寓,出租房屋等。