全部查看
楼房 プライムアーバン新川 801
2LDK / 8楼 / 59.68m²
收藏夹
自动锁木地板
周边环境
东京都 Chuo-ku 新川2丁目 在谷歌地图上查看
设施
煤气
洗衣机置物间
电梯
阳台
地板
快递箱
自行车停车场
转角房间
壁橱
公交车专用车间
共用厕所
独立浴室、厕所
附加功能
温水洗马桶座
浴室烘干机
独立洗手间
灶台类型
炉子数
系统厨房
自动锁
电视耳机

其他:乐器咨询, 事务所, 两人入住, 宠物, 自来水, 排水, 有线电视, CS天线, Internet应对, 鞋盒

物业详情
建筑物年龄 1999/08
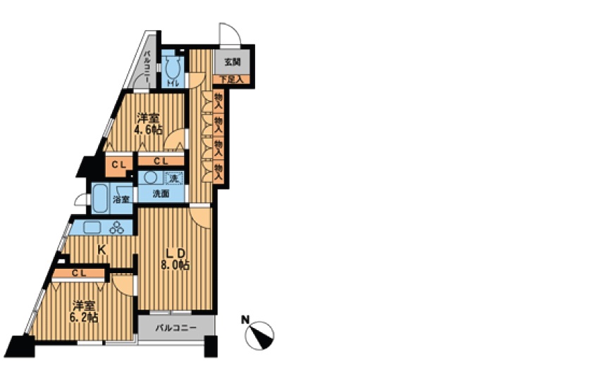
平面图 2LDK / 8楼
占地面积 59.68㎡
停车场 没有空屋
建筑结构 SRC
位置
主要采光面 西南
交货 2026/01 下旬 ¥
最近更新时间 2025/12/26
估计初始费用
保证金
288,000 日元
礼金
288,000 日元
以前的租金
日元
租金+共益费/管理费
中介费
日元
月租金+税
其他
日元
总计
1,162,000 日元
估计每月费用
房租费
288,000 日元
维护费,管理费等
10,000 日元
其他
日元
总计
298,000 日元
估计其他费用
更新费
¥0
更换钥匙费
¥0
室内清洁费
¥0
保险公司使用费
¥0
房屋保险费
与房地产公司确认
除这些项目外,可能还有其他费用。<br>请与房地产代理商联系以获取确切金额。
同一建筑物内的其他房间
2LDK / 803号室 / 8楼 / 63.01m²
¥292,000 /月
楼房プライムアーバン新川 801 的详细信息页面。如果您正在寻找面向外国人的房屋出租信息以及留学生专用的房间的话,YOLO HOME!
您可以从所需条件中搜索。请从房间布局,租金,安全性,设施信息,周围环境等中找到您理想中的租赁物业。全国面向外国人的房屋出租,房屋查找,房地产信息,请介绍YOLO HOME! YOLO HOME是面向留学生和外国人的房地产租赁信息网站,如果您想租用出租公寓,出租高级公寓,出租房屋等。