全部查看
楼房 GENOVIA川口元郷 0505
1K / 5楼 / 21m²
收藏夹
可以24小时扔垃圾自动锁免费上网可以养宠物,需商量不需要保证人木地板
周边环境
埼玉县 Kawaguchi-shi 元郷2丁目 15番27 在谷歌地图上查看
设施
煤气
热水供应
洗衣机置物间
电梯
阳台
地板
快递箱
自行车停车场
摩托车停放处
扔垃圾24小时OK
互联网使用费
壁橱
公交车专用车间
共用厕所
独立浴室、厕所
淋浴
温水洗马桶座
浴室烘干机
独立洗手间
灶台类型
炉子数
系统厨房
自动锁
电视耳机
监控摄像头
保安公司

其他:乐器咨询, 事务所, 两人入住, 单身者, 学生, 宠物, 担保人, 自来水, 排水, Internet应对, 客房占有率, 全居室收纳, 鞋盒

物业详情
建筑物年龄 2024/06
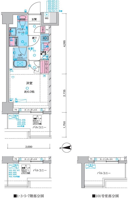
平面图 1K / 5楼
占地面积 21㎡
停车场
建筑结构 RC
位置
主要采光面 西方
交货 2026/04 上旬
最近更新时间 2026/01/12
估计初始费用
保证金
0 日元
礼金
0 日元
以前的租金
日元
租金+共益费/管理费
中介费
日元
月租金+税
其他
日元
总计
162,000 日元
估计每月费用
房租费
76,000 日元
维护费,管理费等
10,000 日元
其他
日元
总计
86,000 日元
估计其他费用
更新费
¥0
更换钥匙费
¥0
室内清洁费
¥0
保险公司使用费
¥0
房屋保险费
与房地产公司确认
除这些项目外,可能还有其他费用。<br>请与房地产代理商联系以获取确切金额。
楼房GENOVIA川口元郷 0505 的详细信息页面。如果您正在寻找面向外国人的房屋出租信息以及留学生专用的房间的话,YOLO HOME!
您可以从所需条件中搜索。请从房间布局,租金,安全性,设施信息,周围环境等中找到您理想中的租赁物业。全国面向外国人的房屋出租,房屋查找,房地产信息,请介绍YOLO HOME! YOLO HOME是面向留学生和外国人的房地产租赁信息网站,如果您想租用出租公寓,出租高级公寓,出租房屋等。