全部查看
楼房 パークキューブ板橋本町 1207
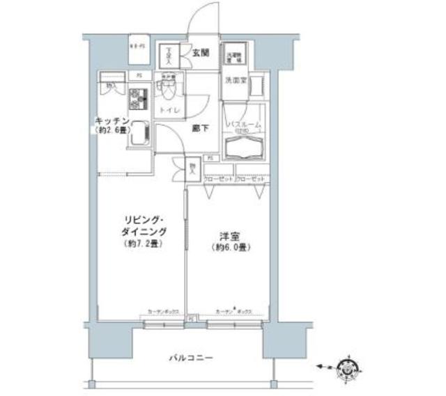
1LDK / 12楼 / 40.13m²
收藏夹
可以24小时扔垃圾自动锁木地板
周边环境
东京都 Itabashi-ku 大和町 18-6 在谷歌地图上查看
设施
洗衣机置物间
电梯
阳台
地板
快递箱
摩托车停放处
扔垃圾24小时OK
公交车专用车间
独立浴室、厕所
附加功能
浴室烘干机
独立洗手间
系统厨房
自动锁

其他:乐器咨询, 事务所, 宠物, 有线电视, CS天线, BS天线, Internet应对

物业详情
建筑物年龄 2008/02
平面图 1LDK / 12楼
占地面积 40.13㎡
停车场
建筑结构 RC
位置
主要采光面 西方
交货 2026/06 中旬
最近更新时间 2026/04/16
估计初始费用
保证金
176,000 日元
礼金
176,000 日元
以前的租金
日元
租金+共益费/管理费
中介费
日元
月租金+税
其他
日元
总计
712,000 日元
估计每月费用
房租费
176,000 日元
维护费,管理费等
8,000 日元
其他
日元
总计
184,000 日元
估计其他费用
更新费
¥0
更换钥匙费
¥0
室内清洁费
¥0
保险公司使用费
¥0
房屋保险费
与房地产公司确认
除这些项目外,可能还有其他费用。<br>请与房地产代理商联系以获取确切金额。
同一建筑物内的其他房间
1LDK / 1306号室 / 13楼 / 40.13m²
¥176,000 /月
楼房パークキューブ板橋本町 1207 的详细信息页面。如果您正在寻找面向外国人的房屋出租信息以及留学生专用的房间的话,YOLO HOME!
您可以从所需条件中搜索。请从房间布局,租金,安全性,设施信息,周围环境等中找到您理想中的租赁物业。全国面向外国人的房屋出租,房屋查找,房地产信息,请介绍YOLO HOME! YOLO HOME是面向留学生和外国人的房地产租赁信息网站,如果您想租用出租公寓,出租高级公寓,出租房屋等。