Security deposit
0 yen
Key money
0 yen
Advance rent
yen
Rental fee + common service fee/management fee
Introduction fee
yen
1 month's rent + tax
Other
yen
Total
161,500 yen
Other:BS Antenna, Shoebox
| Construction date | 2026/01 (Newly built) |
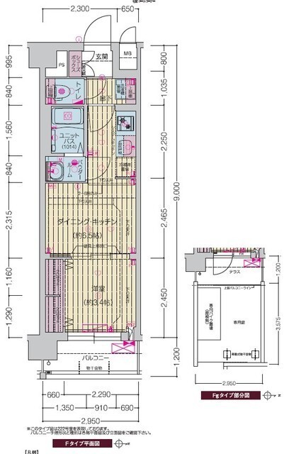
| Floor plan | 1DK / 4th floor |
| Occupied area | 26.55㎡ |
| Parking lot | Unavailable |
| Building structure | RC |
| Location | |
| Direction of main light source | East |
| Handing over of keys | 2026/02 Late |
| Last updated | 2025/12/06 |

Estimate of inital fees