外国人の仕事探し、家探しならYOLO JAPAN
仕事探し
モニター体験
FAQ
閲覧履歴
お気に入り
ログイン
会員登録
Japanese
留学生・外国人向け不動産・賃貸情報サイトYOLO HOME
神奈川県
横浜市青葉区
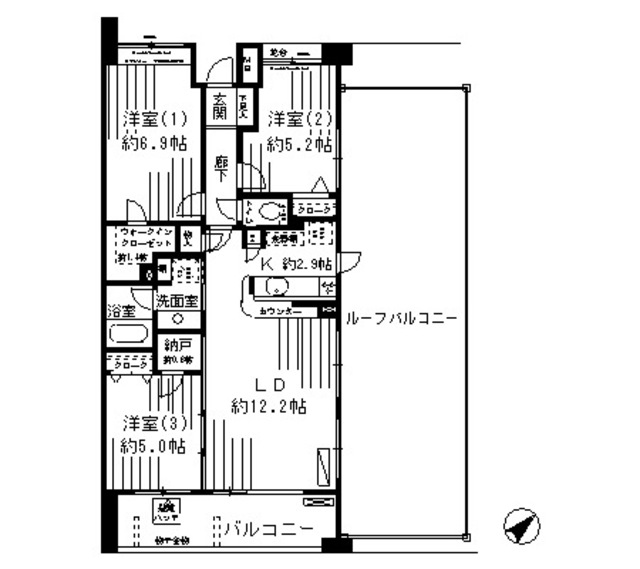
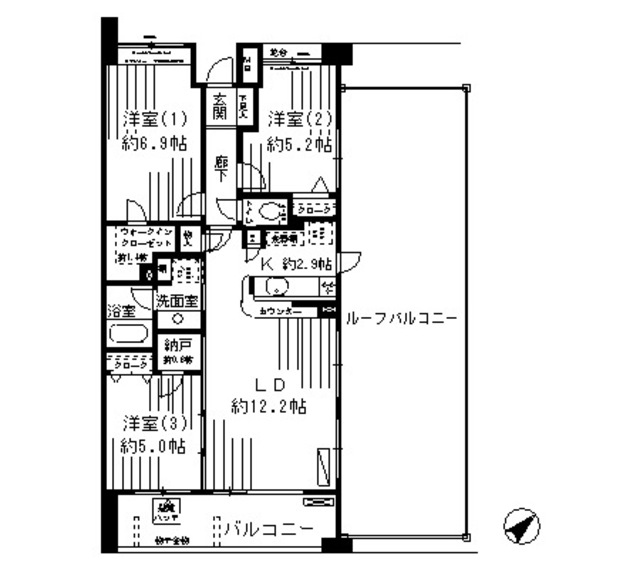
マンション ミレニアムコート青葉台 406
画像
周辺環境
設備
物件詳細
初期費用
月額費用
1/6
全て見る
1/6
マンション ミレニアムコート青葉台 406
3LDK / 4階 / 70.52m²
お気に入り
シェア
URLをコピー
オートロック
ウォークインクローゼット
フローリング
周辺環境
神奈川県 横浜市青葉区 青葉台2丁目
36-1
Google マップで見る
ストリートビューを見る
設備
建物設備
バス・トイレ
キッチン
セキュリティ
W.INクローゼット
洗濯機置き場
エレベータ
バルコニー
フローリング
宅配ボックス
バス専用共同
バス・トイレ別
浴室乾燥機
洗面所独立
システムキッチン
オートロック
その他:楽器相談, 事務所, CATV, internet 対応
物件詳細
築年月
2000/02
間取り
3LDK / 4階
専有面積
70.52㎡
駐車場
空有 18700円
建物構造
RC
位置
主要採光面
南東
引き渡し
2026/03 下旬
最終更新日
2025/12/31
空室状況を問い合わせる
この物件を見学する
初期費用の目安
敷金
216,000
円
礼金
432,000
円
前家賃
円
賃料+共益費・管理費
仲介手数料
円
賃料の1ヶ月分+税
その他
円
合計
1,090,000
円
月額費用の目安
賃料
216,000
円
共益費・管理費等
10,000
円
その他
円
合計
226,000
円
その他費用の目安
更新料
¥0
鍵交換費
¥0
室内清掃費用
¥0
保証会社利用料
¥0
住宅保険料
不動産会社に確認
これらの項目以外にも費用がかかる場合があります。正確な金額は不動産会社にお問合せください。
同じ建物の物件
2LDK /
203号室 /
2階 / 59.72m²
¥159,000
/ 月
この物件を見ている人におすすめの物件
さらに賃料が安い
¥131,000
/ 月
管理費:¥5,000
89.34㎡ 3LDK LDK
さらに賃料が安い
¥65,000
/ 月
管理費:¥2,000
46.37㎡ 3LDK DK
さらに賃料が安い
¥123,000
/ 月
管理費:¥8,000
57.55㎡ 3LDK DK
さらに築年数が浅い
¥225,000
/ 月
管理費:¥15,000
72.51㎡ 3LDK LDK
さらに賃料が安い
¥198,000
/ 月
管理費:¥12,000
79.19㎡ 3LDK LDK
さらに賃料が安い
¥198,000
/ 月
管理費:¥12,000
79.19㎡ 3LDK LDK
神奈川県横浜市青葉区の賃貸物件をこだわりテーマから探す
敷金 / 礼金ゼロ
保証人不要
家具家電付き
一人暮らし
学生・留学生
ファミリー物件
新婚・カップル
カード決済
ペット可・相談
デザイナーズ
リノベーション
セキュリティ
駅徒歩10分以内
バイク置き場
駐輪場有り
駐車場有り
神奈川県横浜市青葉区にある駅から賃貸物件を探す
東急田園都市線
たまプラーザ
あざみ野
江田
市が尾
藤が丘
青葉台
田奈
横浜市営地下鉄ブルーライン
あざみ野
東急こどもの国線
こどもの国
恩田
マンション ミレニアムコート青葉台 406 の物件詳細ページ。全国の賃貸物件外国人向けの賃貸情報・留学生向け専用のお部屋探しならYOLO HOME!
ご希望条件から検索可能。間取りや賃料、セキュリティーや設備情報、周辺環境などから、あなたの理想にぴったりな賃貸物件をお探しください。全国の賃貸物件の外国人向けの賃貸・部屋探し・不動産情報(ふどうさんじょうほう)ならYOLO HOMEをご紹介!賃貸マンション・賃貸アパート・賃貸一軒家などの賃貸住宅を借りるなら、留学生・外国人向け不動産 賃貸情報サイト YOLO HOME。