Ver tudo
Prédio residencial デコール代官山 1F
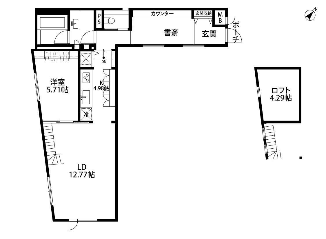
1LDK / 1° andar / 58.72m²
Favoritos
NovoPiso de tablado
Ambiente ao redor
Tokyo Shibuya-ku 鉢山町 4-5 Ver no Google Maps
Instalação
Gás
Água quente
Local para a máquina de lavar roupa
Sacada
Piso de madeira
Armário de roupa
Banheira compartilhada
Banheiro compartilhado
Banheira e banheiro separados
Recurso de aquecimento da água da banheira
Vaso sanitário com lavagem de água quente
Secador de teto no banheiro
Pia independente
Banheira automática
Tipo de fogão
Número de bocas no fogão
Cozinha embutida
Máquina de lavar louça e secadora
Interfone com câmera
Câmeras de Segurança

Outros :Aluguel por tempo fixo, Água, Drenagem, CATV, Com internet, Armário para sapatos

Detalhes do imóvel
Ano de construção 2025/09 (Novo)
Planta da casa 1LDK / 1° andar
Área interna 58.72㎡
Estacionamento Indisponível
Área da construção Outros
Localização 1° andar
Direção que bate a luz do sol
Entrega do imóvel
Ultima atualização 2026/01/10
Valor base das despesas iniciais
Depósito de garantia
870,000 ¥
Luva
435,000 ¥
Pagamento adiantado de aluguel
¥
Valor do aluguel + condomínio + despesas com administração
Taxa de corretagem
¥
Preço de um mês de aluguel + taxas
Outros
¥
Total
2,190,000 ¥
Despesas médias por mês
Preço do aluguel
435,000 ¥
Despesa de condomínio・despesa com taxa de administração
15,000 ¥
Outros
¥
Total
450,000 ¥
Outras despesas
Preço para renovar o contrato
¥0
Despesa para troca de chaves
¥0
Despesa para limpeza do quarto
¥0
Pagamento da empresa de seguro
¥0
Taxa de seguro da residência
Confirmar com a imobiliária
Além destes itens há outros que podem gerar despesas. Pergunte o valor exato para a imobiliária.
Imóveis semelhantes
1LDK / B1F号室 / -1° andar / 58.38m²
¥415,000 por mês
1LDK / 2F号室 / 2° andar / 61.83m²
¥465,000 por mês
A página detalhada do Prédio residencial デコール代官山 1F pode ser vista na YOLO HOME, uma página especializada em imóveis em todo o Japão para intercambistas ou estrangeiros!
É possível pesquisar a partir do imóvel desejado. Procure um imóvel com as características ideais para você, como planta da casa, preço do aluguel, segurança, instalações e ambiente ao redor. A YOLO HOME apresentará informações de imóveis em todo o país para estrangeiros que queiram alugar um imóvel! Use o site de informações de imóveis da YOLO HOME para imóveis, como conjuntos residenciais, apartamentos e casas de aluguel para intercambistas ou estrangeiros.