Apartment complex プレサンス塚本アクミリオン 1302
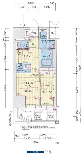
1K / 13th floor / 21.28m²
Favorites
FurnishedAutolockFree internetFlooring
Surrounding area
Osaka Osaka-shi Nishiyodogawa-ku 歌島1丁目 2-15 View on Google Maps
Facility
Gas
Hot water
Washing machine room
Elevator
Balcony
Flooring
Parcel delivery locker
Fully furnished
Internet usage fee
Closet
Shared bathroom
Shared toilet
Separate bathroom and toilet
Shower
Warm water washing toilet seat
Independent sink
Cooktop type
Automatic door lock
TV door intercom

Other:Musical instruments negotiable, Office, Two-person, Term rent, Internet, Shoebox

Unit details
Construction date 2023/01
Floor plan 1K / 13th floor
Occupied area 21.28㎡
Parking lot -
Building structure RC
Location
Direction of main light source West
Handing over of keys 2026/02 Mid
Last updated 2025/12/28
Estimate of inital fees
Security deposit
0 yen
Key money
77,000 yen
Advance rent
yen
Rental fee + common service fee/management fee
Introduction fee
yen
1 month's rent + tax
Other
yen
Total
242,000 yen
Estimate of monthly fees
Rental fee
77,000 yen
Common service fee/management fee, etc.
11,000 yen
Other
yen
Total
88,000 yen
Estimate of other fees
Renewal fee
¥0
Lock changing fee
¥0
Room cleaning fee
¥0
Guarantor company fee
¥0
Home insurance fee
Check with real estate company
There may be fees other than those listed here. <br>Please contact the real estate company for the <br>exact fees.
Units in the same building
1K / 1504号室 / 15th floor / 21.66m²
69,280 yen per month
1K / 1003号室 / 10th floor / 21.66m²
66,280 yen per month
1K / 1309号室 / 13th floor / 22.8m²
67,930 yen per month
1K / 1306号室 / 13th floor / 22.63m²
67,980 yen per month
1LDK / 0401号室 / 4th floor / 30.4m²
101,340 yen per month
Unit details for "Apartment complex プレサンス塚本アクミリオン 1302". Find rental units rental information for foreigners and international students anywhere in Japan with YOLO HOME!
Search based on your preferences. Find the perfect room for you by searching for floor plan, rent, security, equipment, and area. Find a rental unit and real estate information for foreigners and international <br>students anywhere in Japan with YOLO HOME! YOLO HOME is a real estate and rental information site for foreigners and international students with listings for rental apartments, rental rooms, and rental houses.