See all
Apartment complex ハーモニーレジデンス品川高輪 208
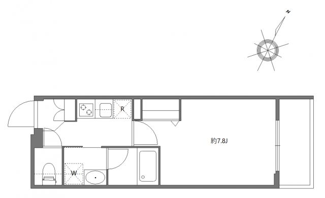
1K / 2th floor / 25.98m²
Favorites
FurnishedAutolockFlooring
Surrounding area
Tokyo Minato-ku 高輪4丁目 18-9 View on Google Maps
Facility
Hot water
Washing machine room
Elevator
Flooring
Parcel delivery locker
Corner room
Fully furnished
Closet
Shared bathroom
Shared toilet
Separate bathroom and toilet
Warm water washing toilet seat
Bathroom dryer
Independent sink
Cooktop type
Number of burners on cooktop
Built-in kitchen
Automatic door lock
TV door intercom

Other:Musical instruments negotiable, Office, Two-person, Term rent, Internet

Unit details
Construction date 2017/07
Floor plan 1K / 2th floor
Occupied area 25.98㎡
Parking lot -
Building structure RC
Location
Direction of main light source Northeast
Handing over of keys 2026/07 Late
Last updated 2026/05/31
Estimate of inital fees
Security deposit
0 yen
Key money
165,000 yen
Advance rent
yen
Rental fee + common service fee/management fee
Introduction fee
yen
1 month's rent + tax
Other
yen
Total
506,000 yen
Estimate of monthly fees
Rental fee
165,000 yen
Common service fee/management fee, etc.
11,000 yen
Other
yen
Total
176,000 yen
Estimate of other fees
Renewal fee
¥0
Lock changing fee
¥0
Room cleaning fee
¥0
Guarantor company fee
¥0
Home insurance fee
Check with real estate company
There may be fees other than those listed here. <br>Please contact the real estate company for the <br>exact fees.
Units in the same building
1K / 305号室 / 3th floor / 25.6m²
167,000 yen per month
1K / 308号室 / 3th floor / 25.9m²
166,000 yen per month
1K / 207号室 / 2th floor / 26.07m²
147,000 yen per month
1K / 304号室 / 3th floor / 25.65m²
160,000 yen per month
1K / 302号室 / 3th floor / 25.65m²
160,000 yen per month
Unit details for "Apartment complex ハーモニーレジデンス品川高輪 208". Find rental units rental information for foreigners and international students anywhere in Japan with YOLO HOME!
Search based on your preferences. Find the perfect room for you by searching for floor plan, rent, security, equipment, and area. Find a rental unit and real estate information for foreigners and international <br>students anywhere in Japan with YOLO HOME! YOLO HOME is a real estate and rental information site for foreigners and international students with listings for rental apartments, rental rooms, and rental houses.