Apartment complex パークハビオ新橋 506
1K / 5th floor / 25.27m²
Favorites
AutolockFlooring
Surrounding area
Tokyo Minato-ku 新橋5丁目 24番8号 View on Google Maps
Facility
Washing machine room
Elevator
Balcony
Flooring
Parcel delivery locker
With lighting equipment
Separate bathroom and toilet
Shower
Water heating feature
Warm water washing toilet seat
Bathroom dryer
Cooktop type
Number of burners on cooktop
Automatic door lock
TV door intercom
Closed-circuit television

Other:Musical instruments negotiable, Office, Pet, Internet, Kid's room

Unit details
Construction date 2013/08
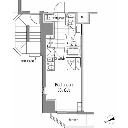
Floor plan 1K / 5th floor
Occupied area 25.27㎡
Parking lot Unavailable
Building structure RC
Location
Direction of main light source Southeast
Handing over of keys 2026/05 Early
Last updated 2026/03/15
Estimate of inital fees
Security deposit
155,000 yen
Key money
155,000 yen
Advance rent
yen
Rental fee + common service fee/management fee
Introduction fee
yen
1 month's rent + tax
Other
yen
Total
630,000 yen
Estimate of monthly fees
Rental fee
155,000 yen
Common service fee/management fee, etc.
10,000 yen
Other
yen
Total
165,000 yen
Estimate of other fees
Renewal fee
¥0
Lock changing fee
¥0
Room cleaning fee
¥0
Guarantor company fee
¥0
Home insurance fee
Check with real estate company
There may be fees other than those listed here. <br>Please contact the real estate company for the <br>exact fees.
Units in the same building
1LDK / 1502号室 / 15th floor / 42.83m²
284,000 yen per month
1K / 207号室 / 2th floor / 25.27m²
152,000 yen per month
1R / 803号室 / 8th floor / 25.27m²
161,000 yen per month
1K / 606号室 / 6th floor / 25.27m²
160,000 yen per month
1R / 901号室 / 9th floor / 25.03m²
163,000 yen per month
Unit details for "Apartment complex パークハビオ新橋 506". Find rental units rental information for foreigners and international students anywhere in Japan with YOLO HOME!
Search based on your preferences. Find the perfect room for you by searching for floor plan, rent, security, equipment, and area. Find a rental unit and real estate information for foreigners and international <br>students anywhere in Japan with YOLO HOME! YOLO HOME is a real estate and rental information site for foreigners and international students with listings for rental apartments, rental rooms, and rental houses.