See all
Apartment complex パークコート渋谷ザタワー 3404
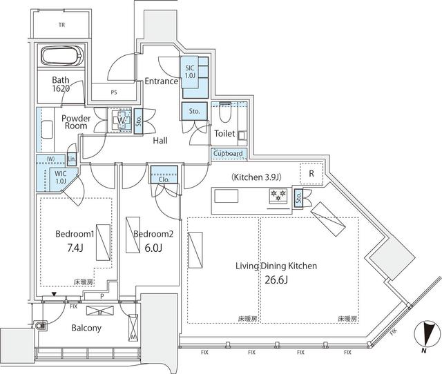
2LDK / 34th floor / 91.91m²
Favorites
AutolockWalk-in closetFlooring
Surrounding area
Tokyo Shibuya-ku 宇田川町 1-12 View on Google Maps
Facility
Walk-in closet
Washing machine room
Elevator
Balcony
Flooring
Parcel delivery locker
Bicycle storage
Floor heating
Shared bathroom
Separate bathroom and toilet
Water heating feature
Bathroom dryer
Independent sink
Built-in kitchen
Automatic door lock

Other:Office, CATV, Front service

Unit details
Construction date 2020/07
Floor plan 2LDK / 34th floor
Occupied area 91.91㎡
Parking lot Available 0 yen
Building structure RC
Location
Direction of main light source North
Handing over of keys 2026/05 Mid
Last updated 2026/04/03
Estimate of inital fees
Security deposit
1,300,000 yen
Key money
1,300,000 yen
Advance rent
yen
Rental fee + common service fee/management fee
Introduction fee
yen
1 month's rent + tax
Other
yen
Total
5,200,000 yen
Estimate of monthly fees
Rental fee
1,300,000 yen
Common service fee/management fee, etc.
0 yen
Other
yen
Total
1,300,000 yen
Estimate of other fees
Renewal fee
¥0
Lock changing fee
¥0
Room cleaning fee
¥0
Guarantor company fee
¥0
Home insurance fee
Check with real estate company
There may be fees other than those listed here. <br>Please contact the real estate company for the <br>exact fees.
Units in the same building
2LDK / 3604号室 / 36th floor / 110.03m²
1,200,000 yen per month
1LDK / 507号室 / 5th floor / 41.72m²
383,000 yen per month
Unit details for "Apartment complex パークコート渋谷ザタワー 3404". Find rental units rental information for foreigners and international students anywhere in Japan with YOLO HOME!
Search based on your preferences. Find the perfect room for you by searching for floor plan, rent, security, equipment, and area. Find a rental unit and real estate information for foreigners and international <br>students anywhere in Japan with YOLO HOME! YOLO HOME is a real estate and rental information site for foreigners and international students with listings for rental apartments, rental rooms, and rental houses.