Security deposit
0 yen
Key money
82,200 yen
Advance rent
yen
Rental fee + common service fee/management fee
Introduction fee
yen
1 month's rent + tax
Other
yen
Total
254,050 yen
Other:CATV, BS Antenna, Shoebox
| Construction date | 2026/06 (Newly built) |
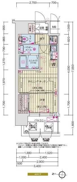
| Floor plan | 1DK / 3th floor |
| Occupied area | 25.67㎡ |
| Parking lot | Unavailable |
| Building structure | RC |
| Location | |
| Direction of main light source | West |
| Handing over of keys | 2026/07 Early |
| Last updated | 2026/04/04 |
Estimate of inital fees