See all
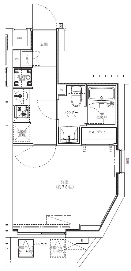
Apartment complex GENOVIA学芸大学 0203
1K / 2th floor / 25.48m²
Favorites
24-hour garbage disposal OKAutolockFree internetPets allowed/negotiableNo guarantor neededFlooring
Surrounding area
Tokyo Meguro-ku 目黒本町2丁目 15-8 View on Google Maps
Facility
Gas
Hot water
Washing machine room
Elevator
Flooring
Parcel delivery locker
Corner room
24-hour garbage disposal service
Internet usage fee
Closet
Shared bathroom
Shared toilet
Separate bathroom and toilet
Shower
Warm water washing toilet seat
Bathroom dryer
Independent sink
Cooktop type
Number of burners on cooktop
Built-in kitchen
Automatic door lock
TV door intercom
Closed-circuit television
Security company

Other:Musical instruments negotiable, Office, Two-person, Single person, Student, Pet, Guarantor, Water, Drainage, Internet, Shared room, All living room storage, Shoebox

Unit details
Construction date 2023/05
Floor plan 1K / 2th floor
Occupied area 25.48㎡
Parking lot -
Building structure RC
Location
Direction of main light source North
Handing over of keys 2026/06 Late
Last updated 2026/04/13
Estimate of inital fees
Security deposit
0 yen
Key money
0 yen
Advance rent
yen
Rental fee + common service fee/management fee
Introduction fee
yen
1 month's rent + tax
Other
yen
Total
294,000 yen
Estimate of monthly fees
Rental fee
142,000 yen
Common service fee/management fee, etc.
10,000 yen
Other
yen
Total
152,000 yen
Estimate of other fees
Renewal fee
¥0
Lock changing fee
¥0
Room cleaning fee
¥0
Guarantor company fee
¥0
Home insurance fee
Check with real estate company
There may be fees other than those listed here. <br>Please contact the real estate company for the <br>exact fees.
Units in the same building
1K / 0103号室 / 1th floor / 25.48m²
136,000 yen per month
1K / 0504号室 / 5th floor / 25.46m²
144,000 yen per month
1K / 0303号室 / 3th floor / 25.48m²
143,000 yen per month
Unit details for "Apartment complex GENOVIA学芸大学 0203". Find rental units rental information for foreigners and international students anywhere in Japan with YOLO HOME!
Search based on your preferences. Find the perfect room for you by searching for floor plan, rent, security, equipment, and area. Find a rental unit and real estate information for foreigners and international <br>students anywhere in Japan with YOLO HOME! YOLO HOME is a real estate and rental information site for foreigners and international students with listings for rental apartments, rental rooms, and rental houses.