Nhà manshon プレサンス昭和通ESRISE 1002
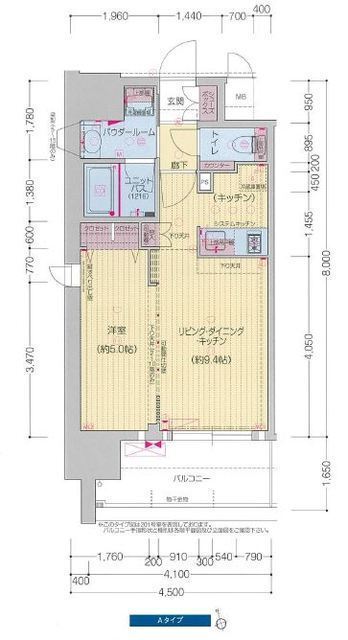
1LDK / 10 tầng / 36.38m²
Yêu thích
Có đồ dùng gia dụng đi kèmTự động khoáInternet miễn phí
Môi trường xung quanh
Hyogo Amagasaki-shi 東難波町5丁目 7番19号 Xem trên Google map
Thiết bị
Gas
Có chỗ để máy giặt
Thang máy
Ban công
Hộp bưu kiện
Có đồ nội thất và đồ gia dụng
Phí sử dụng internet
Tủ quần áo
Dùng chung phòng tắm
Dùng chung nhà vệ sinh
Nhà tắm, nhà vệ sinh riêng
Vòi hoa sen
Bệ ngồi rửa nước nóng
Chỗ rửa mặt riêng
Loại bếp
Khóa tự động
Chuông cửa có TV

Khác :Trao đổi về nhạc cụ, Văn phòng, Thuê nhà có thời hạn, Có internet, Hộp đựng giày

Chi tiết nhà
Tháng năm xây dựng 2021/04
Bố trí nhà ở 1LDK / 10 tầng
Diện tích 36.38㎡
Bãi đỗ xe Không
Cấu trúc xây dựng RC
Vị trí
Mặt được nắng chiếu chính Phía Nam
Chuyển 2026/01 Hạ tuần (10 ngày cuối tháng)
Cập nhật mới nhất 2026/01/02
Mục tiêu chi phí đầu kì
Tiền đặt cọc
0 yên
Tiền lễ
125,000 yên
Tiền nhà trước đây
yên
Tiền thuê + phí dịch vụ chung, phí quản lý
Phí trung gian
yên
Tiền nhà 1 tháng + thuế
Khác
yên
Tổng
386,000 yên
Mục tiêu chi phí hàng tháng
Tiền thuê
125,000 yên
Phí dịch vụ chung, phí quản lý...
11,000 yên
Khác
yên
Tổng
136,000 yên
Mục tiêu các chi phí khác
Phí làm mới hợp đồng
¥0
Phí thay khóa
¥0
Phí lau dọn trong phòng
¥0
Phí sử dụng công ty bảo đảm
¥0
Phí bảo hiểm nhà
Xác nhận với công ty bất động sản
Có thể có chi phí khác ngoài những mục này. Vui lòng liên hệ với công ty bất động sản để biết số tiền chính xác.
Nhà khác trong cùng tòa nhà
1LDK / 0801号室 / 8 tầng / 35.62m²
99,450 yên / tháng
1LDK / 0201号室 / 2 tầng / 35.62m²
94,450 yên / tháng
Trang chi tiết Nhà manshon プレサンス昭和通ESRISE 1002. Hãy đến với YOLO HOME nếu bạn đang tìm kiếm thông tin nhà cho thuê cho người nước ngoài và phòng dành riêng cho sinh viên quốc tế trên cả nước!
Bạn có thể tìm kiếm từ các điều kiện mong muốn của bạn. Hãy tìm nhà cho thuê phù hợp với bạn dựa trên bố trí nhà ở, tiền thuê, an ninh, thông tin thiết bị, môi trường xung quanh, v.v. Chúng tôi xin giới thiệu YOLO HOME nếu bạn cần thông tin nhà cho thuê, tìm phòng và thông tin bất động sản cho người nước ngoài trong số nhà cho thuê trên toàn quốc! Nếu bạn muốn thuê apartment, manshon hoặc nhà riêng cho thuê, hãy đến với YOLO HOME, trang web thông tin cho thuê bất động sản dành cho sinh viên quốc tế và người nước ngoài!